Строительство печи в частном доме – ответственное и требующее особых навыков мероприятие, которое рекомендуется выполнять под руководством опытного печника. Только он знает, как построить русскую печь: правильно подобрать схему кладки, выбрать кирпич, приготовить раствор.
Даже небольшие просчеты в порядовке могут обернуться плачевным результатом, поэтому необходимо следовать правилам работы и нормативным требованиям в строительстве.
Устройство русской печи
По размеру, форме и особенностям конструкции русские печи могут отличаться. По одному из определений, это отопительно-варочные сооружения с 2-мя топливниками, предназначенные кроме отопительных функций еще и готовить характерные блюда, и выпекать хлеба.
Процесс сжигания дров в главном топливнике происходит следующим образом: газы, образующиеся в процессе горения поленьев, поступают в 1 секцию подподовой камеры, затем через специальные отверстия – подвертки поступают во 2 секцию. После этого они перемещаются в верхнюю варочную камеру, откуда в сборный канал и в трубу.
Схема устройства русской печи. Основной топливник необходим для зимнего отопления, малый используют для приготовления пищи в любое время года
При сжигании дров в малом топливнике газы от горения сначала поступают в основной топливник, из него – в трубу. Здесь можно использовать не только сухие поленья, но и кору, щепу, ветки и прочие отходы.
Русская печь обладает массой достоинств, но имеет один заметный недостаток: тепло выделяется на уровне пода, то есть примерно на расстоянии 0,9 м от пола, что препятствует нагреванию нижней части помещения
Основанием для конструкции служит фундамент, обычно на 0,1 м превышающий размеры нижней части русской печи. Здесь же, внизу, находится подпечье – свободное пространство для хранения кочерги, ухвата, лопатки и другого инвентаря.
Главной частью считается горнило – варочная камера с отверстием (устьем) с передней стороны. Устье может иметь прямоугольную или арочную форму. Через него внутрь горнила закладывают топливо (поленья) и ставят посуду с пищей
Для кладки варочной камеры, а в частности для свода, подбирают самый огнестойкий, отборный кирпич. От толщины стенок зависит, как долго будет держаться тепло.
Тонкие стенки варочной камеры очень быстро нагреваются, но остужаются также быстро. Стандартная толщина – 1 или ¾ кирпича. Передняя стенка тоньше – ½ кирпича, как и перегородка перед горнилом.
В нижней части камеры для варки располагается под, для которого годится прочный гладкий кирпич. Зачастую его укладывают насухо, без применения раствора, на засыпку из крупнозернового песка, в который добавляют щебень, гравий или битое стекло. Настилка пода производится с уклоном 3-5 см в сторону устья.
Форма свода влияет на степень нагрева и сложность кладки.
Например, полуциркульные своды слабо нагревают под и неравномерно отражают газы, однако считаются более легкими в устройстве своими руками
Пологие своды класть сложнее, для распределения нагрузки приходится использовать стальные стяжки. Однако при такой конструкции под прогревается сильнее.
Технология кладки свода русской печи может отличаться, но часто соблюдают следующее правило: выкладывают его одновременно с 2-х сторон и заканчивают на середине. В центре закладывают замковый кирпич, для обмазки которого используют раствор глины.
Варочная камера устраивается с учетом того, чтобы топливо можно было укладывать недалеко от устья – горение при этом происходит более эффективно. Горшки и противни также устанавливают на под рядом с устьем
Если выпекают хлеб, то под расчищают – выгребают золу, а ее остатки выметают.
До сих пор существует способ выпекания хлеба без противней и форм, когда его кладут на специальную лопату, слегка посыпанную мукой, а затем «сажают в печь» – просто сбрасывают резким движением на под.
Строительство: подготовка и кладка
Чтобы защитить себя от всевозможных рисков, связанных с возгоранием, а также от претензий пожарной инспекции, рекомендуем при возведении конструкции опираться на нормы и положения, изложенные в правовой документации:
Материалы для сооружения печи должны также соответствовать нормам безопасности и противопожарным правилам.
Выбор места для кладки
Традиционно выбирают такое расположение печи, чтобы устье выходило в сторону окна и было хорошо освещено. Строение может находиться как в центре помещения, так и у стены, в углу.
Если стены деревянные, их необходимо защитить негорючим материалом – например, стальными листами или асбестовыми плитами. При этом кирпичная кладка должна размещаться не ближе, чем на 0,2 м.
Расстояние между печью и стенами помещения необходимо и для проведения ежегодной ревизии, которую обязательно совершают перед началом каждого отопительного сезона
Иногда постройку размещают в простенке между двумя помещениями. Для защиты стены или перегородки можно применить кирпичную кладку толщиной около 0,2 м или облицовку негорючим материалом.
Центральное расположение русской печи позволяет увеличить площадь обогрева: нагретая конструкция может отапливать сразу две смежные комнаты, например, кухню и спальню
Можно использовать и такой вариант, когда большой топливник выходит на кухню, малый – в соседнее помещение. Его раньше практиковали в домах-пятистенках с «летней» избой, в которой топка большой печи с лежанкой с теплый сезон не применялась.
Подготовка инструмента и материалов
Приспособления и инструменты для кладки заготавливают заранее, чтобы не отвлекаться и не бросаться на их поиски в самый неподходящий момент.
Основной инструмент печника:
Кельма или мастерок для распределения раствора
Молоток-кирка для раскалывания кирпичей
Металлическая расшивка для швов
Строительный уровень пузырьковый или лазерный
Также могут пригодится отвес и строительный шнур – для точной подгонки углов и стенок конструкции по вертикали, правило – для выравнивания фундамента, складной стальной метр – для разметки и выравнивания. В целях безопасности рекомендуем перед работой надевать защитную одежду, удобную обувь и перчатки.
Материалы и их количество зависит от выбранной модели печи – с обогревательным щитом, лежанкой или варочной поверхностью.
Таблица необходимых материалов может выглядеть так:
Особое внимание нужно заострить на печных приборах, выполненных из металла (стали или чугуна): дверках, колосниках, вьюшках, задвижках, заслонках, чугунных плитах
Преимущество чугуна над сталью очевидно: он не ржавеет, не прогорает, практически не деформируется под действием высокой температуры, долго держит тепло.
Покупая дверки и задвижки, проследите, чтоб первые закрывались плавно и плотно, а вторые легко скользили в полотне. Ранее размеры приборов подчинялись стандартами, например, прочистные дверки имели размеры 112*150 мм. Сегодня можно встретить оборудование различной формы, длины и ширины.
Как приготовить раствор?
По основному материалу растворы делятся на глиняные, цементные, известковые.
Глиняные считаются традиционными и наиболее подходящими для устройства таких частей печи, как горнило. Современные составы обычно относятся к смешанному (сложному) типу и кроме вяжущего компонента включают заполнители
При обозначении вяжущий компонент стоит на первом месте, заполнитель на втором, например, 1:1 или 1:2. Сложные растворы обозначаются тремя частями, например, 1:2:6, причем на первом месте – два вяжущих компонента, последний – заполнитель. Марка цементных растворов зависит от марки используемого цемента.
Готовый раствор должен обладать следующими качествами:
Здесь действую общие правила: слишком тощие растворы считаются слабыми и недолговечными, а жирные после высыхания дают трещины.
Опытные мастера имеют свои секреты приготовления печных растворов, причем многие из них придерживаются традиций и используют привычный, веками зарекомендовавший себя состав из глины и песка
Самое сложное в подготовке глиняного раствора – найти подходящий сорт глины. Она должна быть жирной, чтобы состав получился эластичным, удобным для кладки и создания аккуратных, ровных швов. На подбор правильных пропорций иногда уходят года – это еще одна причина работать под руководством опытного мастера.
Новички же подбирают состав раствора опытным путем. Сначала глину перед замешиванием очищают от посторонних включений, затем на 24 часа замачивают в воде.
Одинаковые порции глины смешивают с различными порциями песка, формируют лепешки и дают им высохнуть в течении 2-3 суток. В дальнейшем для приготовления раствора применяют пропорции, давшие меньше всего трещин.
Для придания глиняной массе подходящей текстуры и однородности ее замачивают, а затем протирают через сетку с ячейкой 5 мм.
При устройстве топки вместо песка требуется добавлять в огнеупорную глину шамотный порошок 1:3 или 1:4. Можно использовать кладочный состав, приготовленный в заводских условиях.
Для кладки дымоходов и дымооборотов в пределах дома применяют известково-цементную или известково-песчаную смесь. В сооружении трубы выше кровли используют цементный раствор или известково-цементный состав.
Базовые принципы порядковой кладки
Для устройства русской печи рекомендуется использовать полнотелые огнеупорные кирпичи без трещин и сколов. Толщина зазоров между соседними рядами, заполненная раствором – от 0,5 до 0,8 см.
Различные отделы печи могут производиться кладкой в целый кирпич, поставленный на ребро или уложенный плашмя, а также в ½ (равно ширине) или ¼ (равно ребру) кирпича.
Перевязка углов выглядит чаще всего как поочередное переплетение двух сторон – «ложка» (длинного ребра) и «тычка» — короткого ребра
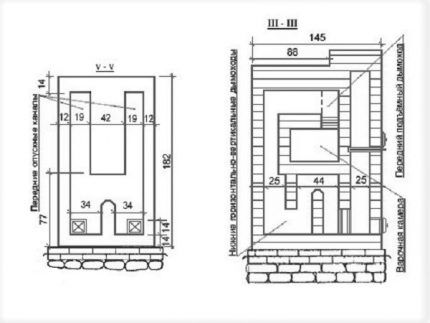
Предлагаем с помощью схем и описания познакомиться с порядковой кладкой русской печи. Размеры предлагаемого варианта – 1,45*1,28 м (то есть 6 кирпичей в дину и 5 – в ширину).
Схема русской печи в разрезе в двух основных позициях. Кладка производится в 32 ряда, первый – на уровне пола, последний – перед дымовой трубой
Фундамент закладывают в грунте, от которого зависит конструкция сооружения. На глубине 12 см от пола укладывают двухслойную гидроизоляцию (например, 2 куска толя).
Схемы кирпичной кладки в разрезе. До уровня пола выкладывают два ряда кирпичей в положении плашмя – это верхнее перекрытие фундамента
Первый слой кладки печи тоже состоит из кирпичей, уложенных плашмя.
1-4 ряды выкладывают согласно ниже приведенным схемам, при этом в 4-ом ряду потребуется закрепить стальные полосы и поддувальные дверцы (3 штуки).
5 ряд отличается установкой колосниковой решетки, которая необходима для удаления золы из варочной топки в поддувальный проем. Под следует выкладывать только из огнеупорного кирпича.
Схема 5 ряда и схема 6-11 рядов:
6-11 ряды выкладывают по одной схеме с некоторыми отличиями:
6 ряд – установка основной дверки топки,
10 ряд – установка поддувальной дверки для малой топки,
11 ряд – колосниковая решетка для удаления золы из малой топки.
12-17 ряды – дополнительные монтажные работы:
12 ряд – дверца малой топки,
13 ряд – варочная 2-конфорочная плита из чугуна (0,71*0,41 м), материал – огнеупорный кирпич и стальные полосы для усиления. После этого выкладывают арочные проемы внутренней, а затем и внешней варочных камер,
15 ряд – огнеупорные кирпичи ставят в положение на ребро, устанавливают дверцу для варочной камеры (0,45*0,45 с защелкой), остальные кирпичи кладут плашмя, перемежая со стальными полосами.
17 ряд – выкладывают из уложенных плашмя кирпичей, затем 5 рядов – патрубок, при этом между последним рядом и потолком прокладывают лист асбеста.
Схемы рядов с 12 по 17 (3-3), с 17 по 22 (4-4), с 22 по 27 (5-5):
Выше основной конструкции печи проходит труба, выложенная в 5 кирпичей (положение плашмя). Для прочности ее соединяют в перевязку. Таким образом, получается 32 ряда.
Печь с водогрейным котлом и лежанкой
Кроме простейшего варианта с двумя топками возводят своими руками сложные русские печи с лежанкой, котлом для нагрева воды, с подтопком или камином. Рассмотрим порядовку популярного решений, которое можно применить для самостоятельного строительства.
Порядовка значительно упрощает кладку, так как графическое изображение и описание каждого ряда показывает, чем именно отличается предыдущий ряд от последующего, какие элементы необходимы на всех этапах.
Рассмотрим схемы для строительства русской печи с котлом, созданные в компьютерной программе.
1 ряд задает расположение всей конструкции, его делают сплошным из огнеупорного кирпича, уложенного плашмя.
Перед кладкой необходимо сделать разметку, возвести фундамент, положить слой гидроизоляции. Лучше сначала разложить все элементы на сухую, чтобы уточнить размеры печи
2 ряд – начало строительства отсеков.
Сначала выкладывают кирпичи, составляющие стенки печи, затем – черед внутренних перегородок. Кирпичи следует класть строго по рисунку, вымеряя каждый ряд уровнем
3 ряд – оформление двух камер, прочистной и поддувальной.
Напротив камер устанавливают чугунные дверцы. Для фиксации применяют проволоку, которая одним концом заводится в ушки изделий, другим – закладывается в швы между кирпичами
4 ряд – закрытие пода.
Одна камера внутри конструкции – под – закрывается уложенными плашмя кирпичами. Таким же образом перекрываются внутренние каналы у стенок
5 ряд – колосник.
Большой топливник оснащают колосниковой решеткой, на этом же этапе устанавливают еще одну дверцу – для малого топливника. Внутреннюю кладку осуществляют шамотным кирпичом без применения раствора
6 ряд – водогрейный бак.
Бак прямоугольной формы, изготовленный из оцинкованной стали и предназначенный для нагрева воды, устанавливают сбоку, но так, чтобы подход к нему был открытым
7 ряд – усиление боковой стенки.
Стяжку стенки производят стальной полосой. Одновременно устанавливают дверку для основной топки и колосник – для малой. Зазоры на внутренней кладке увеличивают теплоотдачу
8 и 9 ряд – выведение каналов.
Выполняется кладка внутренних каналов строго по схеме и по уровню. Здесь же производят установку еще одной дверцы – уже для малой топки
10 ряд – объединение сводов основной и малой топок.
Здесь же сплошняком выкладывается дно горнила. Бак для нагрева воды полностью закрывается. Открытыми оставляют только отверстия для прохождения нагретого воздуха к варочной камере
11 ряд – установка варочной плиты.
Лучшее место для монтажа – на краю передней стенки, над дверцами в обе топочные камеры. Для фиксации плиты подходит стальной уголок 50*50 мм. В задней части – колосниковая решетка
12-13 ряд – оформление стенок варочной плиты.
На этом этапе начинается строительство дымоотвода. Между дымоходом и горнилом следует установить металлическую заслонку, при необходимости закрывающую отверстие
14 ряд – вход в трубу.
Начинается оформление канала для отвода дыма. Отверстие в него открывается с помощью заслонки, установленной вертикально. Продолжается подъем стенок горнила
15 ряд – свод варочной камеры
Направление кладки меняется – она идет на сужение, чтобы сформировать и перекрыть варочную камеру. Появляются очертания дымоходной трубы
16 ряд – усиление стенок.
Кладка производится по принципу 15 ряда, но для надежности конструкции в швы закладывают стальные пластины со стопорными элементами на концах
17 ряд – установка металлических деталей.
Производят стяжку задней стенки металлической полосой, еще больше сужают свод варочной камеры, над варочной плитой устанавливают стальные опоры для последующей кладки – уголок и полосу
18 ряд – свод горнила.
Для создания арочной конструкции свода применяют или шаблон, или металлическую раму. Кирпичи выкладывают на длинное ребро – ложок. Варочную плиту закрывают
19 ряд – усиление внутренней перегородки.
Для усиления, как и обычно, используют стальную планку. По периметру свода выкладывают стенки, которые будут служить бортиками для дальнейшей засыпки
20 ряд – засыпка песком.
Пространство над горнилом полностью засыпается чистым просеянным песком, который необходимо осторожно утеплить. Засыпка повышает теплоемкость камеры для выпекания хлеба
21 ряд – основание лежанки.
В задней части утрамбованный песок и прилегающие к своду стенки полностью закрывают кладкой – это основание будущей лежанки, спереди сужают перетрубье
22 ряд – установка в дымоход металлической детали.
Чтобы увеличить время нагрева, сдерживать тепло и иметь возможность перенаправлять газы, в дымоход устанавливают металлический элемент с отверстием
23 ряд – дверца дымохода.
Для чистки дымохода необходимо специальное отверстие, закрывающееся дверцей, которая фиксируется на проволоку. Продолжается выведение перетрубья
24 ряд – монтаж заслонки.
Заслонка необходима для регулировки тяги и в горниле, и в топках. Сначала устанавливают полотно, по которому она движется, а затем и саму задвижку
25-26 ряд – сужение кладки.
Два ряда выкладывают почти одинаково, главная цель – перекрыть пространство над установленной задвижкой и сформировать верхнюю часть печи
27-29 ряд – соединение перетрубья и дымохода.
Кладка основных частей закончена, продолжается строительство трубы – до уровня разделки. Часть дымохода, проходящую через перекрытие, укрепляют не глиняным, а цементным раствором
Дымоход выводят через чердак на кровлю, там обустраивают выдру и гидроизолируют прилегающую зону, чтобы между трубой и кровельным материалом не было зазоров.
Главное при строительстве – соблюдать порядовку русской печи и следить за качеством используемых материалов.
Рекомендации печников по эксплуатации
Эффективность сгорания топлива и общее состояние печи зависят от соблюдения правил эксплуатации, которых следует придерживаться не время от времени, а регулярно.
Кирпич, как и раствор, относится к «живым» материалам, которые со временем от перепада температур могут деформироваться. Поэтому придется не только производить чистку, но и замазывать трещины, чтобы не образовывался конденсат и теплоемкость конструкции не упала.
Это происходит очень просто, вот пример: вокруг задвижки со временем образовался зазор шириной всего 2 мм. Оказывается, за час он пропускает целых 15 м³ нагретого до температуры 90-100 °С воздуха, то есть примерно около 10 % всего тепла, исходящего от печи.
Потери тепла увеличиваются до 40 %, если просто открыть дверцу, и на 20-25 %, если подавать воздух через поддувало
Ремонт и чистка печей производится один раз в году, перед отопительным сезоном. Но дымоходы нуждаются в очистке гораздо чаще – примерно 2-3 раза за сезон. Перед началом топки удаляют золу с колосниковой решетки, чтобы обеспечить свободный доступ воздуха для эффективного горения.
Топливо заготавливают заранее, так как поленья должны высохнуть. Для этого их складывают в поленницы под навесом и оставляют минимум на год. Сырые дрова не рекомендуют использовать, так как испаряющаяся влага оседает на стенках и смешивается с сажей.
Лучше, если дрова будут одинаковой длины и толщины не более 10 см. Так они прогорят одинаково быстро и равномерно, что важно для нагревания кирпичей
Обычно процесс топки занимает от 1,5 до 2 часов.
Дрова укладывают в топочной камере рядами или клеткой, с небольшим расстоянием между поленьями. Важно, чтобы они сгорели одновременно, так как жара при этом будет больше.
Длительное время топить печь для повышенного прогревания не рекомендуют. Так можно спровоцировать появление трещин, вследствие чего потребуется сначала косметический, а потом и капитальный ремонт – кладка заново.
Для растопки обычно используют быстро воспламеняющиеся материалы: щепу, бумагу, стружку. Перед растопкой открывают все заслонки, вьюшку, дверцу
Как только дрова воспламеняться, топку закрывают, а поддув открывают. Тягу регулируют положением задвижки или вьюшки.
Еще несколько полезных рекомендаций:
Если печь топят каменным углем, то растапливать ее рекомендуют все же дровами.
Производя отделку наружных стенок, помните, что красивая облицовка может частично снизить поступление тепла в помещение.
Выводы и полезное видео по теме
Видеомакет русской печи с порядовкой:
Процесс разборки старой и строительства новой печи:
Один из вариантов русской печи с порядовкой:
Если правильно построить русскую печь, то можно получить сразу и почти «вечный» отопительный прибор, и прекрасное кухонное оборудование для приготовления пищи. Однако для этого устройство должно полностью соответствовать порядовке, а технология укладки кирпичей и замешивания раствора – общепринятым нормам.
А перед тем, как сделать проект русской печи, лучше проконсультироваться с квалифицированными печниками.
Пишите, пожалуйста, комментарии в расположенном ниже блоке. Расскажите, как строили русскую печку у вас на даче или в загородном доме. Задавайте вопросы, делитесь информацией, полезной для заинтересованных темой посетителей сайта, размещайте тематические фото.














































