Беседка на даче или во дворе дома — место для чаепития и посиделок в летнее время. В постройках размером чуть больше, может быть установлен мангал. Тогда уж можно подумать о том, чтобы ее застеклить: шашлык зимой — редкое удовольствие, а мангал одновременно будет согревать воздух внутри. Начинают обычно с моделей попроще и подешевле: строится беседка своими руками, времени чаще всего не хватает. Отсюда и такой выбор. О том, как это правильно сделать, о материалах, методах, способах постройки поговорим дальше.
Немного теории: какие бывают беседки
Ничего сложного: поговорим о типах беседок и материалов, из которых их строят. В первую очередь делят постройки такого типа на открытые (летние) и закрытые (остекленные). Это совсем не значит, что есть только два этих типа: есть и комбинации со съемным остеклением, а есть еще тенты из прозрачной пленки, которые при необходимости натягиваются на каркас беседки. Еще один вариант — часть стен закрыта, часть — открыта. Выбираете тот, что вам ближе.
С полом и без
Еще беседки можно разделить на те, что с полом и без него. Беседки без пола ставятся на подготовленную площадку из тротуарной плитки, залитую бетоном, выложенную брусчаткой и т.п. Хотя никто не мешает строить прямо на траве. Только каркас должен быть обработан соответствующим образом: прямой контакт с почвой требует усиленных мер по защите. Если речь идет о деревянной беседке, ее пропитывают от гнили и грибковых поражений, если она из металла, обрабатывают составом от ржавчины.
Беседки с полом предполагают наличие фундамента. Чаще всего делают столбики. Их можно сложить из кирпича или бута, залить из бетона, поставить фундаментные блоки. Если есть у вас большие валуны с плоской верхушкой, на которые можно опереть постройку, используйте их. Но все это — если постройка легкая — на каркасе из дерева или металла. Для беседок из кирпича требуется ленточный фундамент, хоть и неглубокого заложения (на 20-30 см ниже уровня плодородного слоя).
Если хотите пол в беседке для дачи выложить плиткой, придется бетоном заливать утепленную плиту, а на нее уже класть морозостойкие виды плитки. Причем утепленная плита должна быть как минимум на 50 см шире во все стороны, чем постройка на ней. И эти 50 см делают под небольшим уклоном, чтобы стекала влага. Это собственно, отмостка, которая не даст промерзнуть грунту под беседкой. Так плитку не вывернет и она не потрескается.
Материалы
Каркас садовых или дачных беседок делают из трех материалов:
- деревянного бурса или кругляка малого диаметра;
- стальной трубы (из профильной удобнее);
- полимерных труб (ПВХ).
Единственный материал, который не требует защиты — это полимеры. Они не гниют, не поражаются грибками. Некоторые виды переносят заморозку и разморозку без особого вреда. Так что они могут оставаться зимовать. Вот только чтобы беседка для дачи из ПВХ труб была прочной, нужны они солидного диаметра и с толстой стенкой. И даже в этом случае опираться на каркас не нужно: в придется ставить такую мебель, которая не будет давить на пластик. Ну и мангал нужно будет ставить в стороне (если он предусмотрен).
Чтобы деревянная садовая беседка долго сохраняла привлекательность, всю древесину, которая будет использоваться при строительстве, необходимо предварительно покрыть защитной пропиткой в один-два слоя. Самые дешевые сегодня это пропитки СЕНЕЖ и Усадьба, а отзывы о них и их защитные свойства очень хорошие. У этих производителей есть и колерующие составы.
Металлический каркас для беседки обрабатывается дважды. Первый раз труба грунтуется перед началом стройки, потом проходят тщательно грунтовкой места сварки. Причем, если есть ржавчина, ее или счищают, или проходят преобразователем ржавчины и только после этого грунтуют. Зачем такие сложности? Чтобы внешний вид долго был солидным. После высыхания грунтовки все покрывается краской по металлу для наружного применения.
Обшивка беседок для сада может быть практически любой. Чаще всего используют древесину. Это струганная доска, блокхаус, вагонка, кругляк малого диаметра. Если есть б/у поддоны, их разбирают, шлифуют доску и ею обшивают нижнюю часть каркаса. Получается очень экономно. А за счет того, что древесина уже давно высохла, после обработки защитными составами она служит долго.
Беседки для дачи и сада обшивают следующими материалами:
- поликабронатом (про беседки из поликарбоната читайте тут);
- профилированным листом (профнастилом);
- закаленным стеклом;
- тканью;
- прозрачными пленками ПВХ;
- бамбуком.
Бескаркасные беседки
Это речь шла о каркасных беседках. Теперь о бескаркасных. Это когда на ленточном фундаменте или на монолитной утепленной плите возводят стенки из кирпича, строительных блоков (чаще всего из газобетона) до высоты около 2 метра. Одна или две стенки могут быть высотой под крышу. На остальных делают колонны, на которые и опирается стропильная система. Строительство такой беседки — дело недешевое.
Кладку из кирпича, если она сделана красиво, можно оставить без отделки. Если строили беседку из пеноблоков, отделка ее ничем не отличается от отделки такого же дома. Поверхности обшивают металлической сеткой под штукатурку, потом штукатурят. На выровненные стены можно класть любую отделку: хоть декоративную штукатурку, хоть камень. Садовые беседки из камня, кирпича и пеноблоков чаще всего остекляют: и зимой в них будет тепло.
Крыша
Выбор строения крыши полностью зависит от формы беседки. Если она прямоугольная выбор широкий: одно или двухскатная, четурехскатная. Прямоугольные беседки под односкатной крышей строить проще всего. Двускатная не намного, но сложнее.
Если форма у беседки сложнее: пятиугольная, шестигранная, восьмиугольная, то придется делать шатровую крышу. Она еще сложнее: придется придумывать, как сделать соединение всех стропил в середине.
При использовании гибкого кровельного покрытия и металла или ПВХ в качестве каркаса можно сделать крышу вообще округлой. Трубы гнут, на них крепят материал с уплотнителями под болты или саморезы. Такие садовые беседки очень легки на вид, построить их (при умении обращаться со сварочным аппаратом и трубогибом) можно за несколько часов.
Вот и все. Другие ставят очень редко. Кстати, если вам интересны беседки под одной крышей с домом, их называют верандами. Прочитать о них можно тут.
Это вся теория вкратце. Могут быть еще какие-то частные случаи: материалов множество, как и возможностей их комбинации. Наиболее интересные оригинальные беседки из нестандартных материалов опубликуем в конце статьи. А теперь — практика.
Как сделать беседку своими руками
Чаще всего у нас своими силами строят садовые беседки из дерева. Второе место по популярности — у металлических. Все остальные делают нечасто. Кирпичные и из других строительных материалов из-за того, что стоят дорого, из труб ПВХ — потому что к материалу доверия нет.
Мы разберем пример постройки каркасной беседки из дерева. Но даже если вы собрались делать его из металла или ПВХ, порядок работы будет тот же. Другой принцип соединения материалов каркаса, а в остальном, все аналогично.
При работе с деревом его предварительно нужно обработать антибактериальными и антипиренными (снижающими горючесть материала) пропитками. Только после высыхания составов можно работать. Если этого не сделать, древесина очень быстро потемнеет и потеряет привлекательность.
Как построить беседку из металла читайте тут а в этой статье речь идет о беседках из поликарбоната.
Чертеж
Реализовывались два похожих проекта, по одному типу: четырехугольная беседка под двускатной крышей, только с разными размерами и оформлялись они по-разному. Чертеж одного из них смотрите на фото ниже.
Пошаговая инструкция с фото
Начинается все с подготовки площадки. Если есть дерн — его снимают, удаляют и плодородный слой. Если этого не сделать, корешки, зелень и все остатки будут гнить. На песчаных или супесчаных почвах в котлован засыпают отсев, щебень или битый строительный мусор, все трамбуют, сверху засыпают песком. На глинистых почвах, на которых вода сходит плохо, в котлован лучше засыпать и утрамбовать собственный грунт (глину, но без плодородного слоя). Иначе в яме будет скапливаться и застаиваться вода, что приведет к появлению неприятного запаха. Совсем не то, что нужно.
Выбор типа фундамента и нижняя обвязка
Если времени немного, быстрее всего на утрамбованную подушку установить готовые бетонные блоки. Больше времени придется затратить, если складывать столбики из кирпича, еще больше — заливать их из бетона. Расстояние между опорами должно быть не более 1,5-2 метров. Конкретнее зависит от толщины бруса, из которого будете делать обвязку. Под брус 100*100 мм расстояние — 1,5 метра, под металлическую профильную трубу 60*60 мм можно ставить через 2 метра.
Когда все опоры установлены и выставлены в уровень (используйте колышки, натянутый шнурок и строительный уровень), на них укладывается гидроизоляция. Это рубероид или толь, свернутый в два слоя, или битумная мастика, которой тоже дважды пропитывают поверхность. Затем укладывается нижняя обвязка беседки из бруса. Сколачивается все гвоздями не менее 150 мм длины или соединяется саморезами по дереву. Для большей прочности используются уголки (если найдете усиленные — как на фото — будет замечательно). Хоть беседка и строится изначально как летняя, через какое-то время большинство решает ее застеклить. Вот тогда запас прочности и потребуется.
Установка стоек
Далее устанавливаются стойки из бруса. Они ставятся по углам, в передней части с обоих сторон от входа, на остальных — над столбиками опор. Сверху тоже соединяются обвязкой.
На этом этапе постройки садовой беседки важно стойки поставит строго вертикально. Пользоваться строительным уровнем нежелательно: у него большая погрешность, особенно у бытовых моделей, которыми обычно пользуются застройщики. Потому берем старый добрый отвес и по нему выставляем. Проверяйте вертикаль с двух примыкающих сторон, чтобы стойки никуда не заваливались.
Фиксируют стойки укосинами (на фото видно). Если они вам в дальнейшем будут мешать, можно делать временный вариант, как на фотографии слева. Если обшивка внизу будет непрозрачной, делайте капитально: запилите брус под 45° (удобнее использовать стусло) и прибейте двумя-тремя гвоздями наискосок. Проверяйте не сбилась ли, после установки каждого укоса. Эти небольшие треугольники придают жесткость всей конструкции и она перестает шататься.
Верхняя обвязка и доски пола
Далее, после того, как все стойки установлены и закреплены, монтируется верхняя обвязка. Тут проблем быть не должно. Для повышения надежности соединения используйте уголки. Стойки, кстати, тоже по бокам можно уголками закрепить. Особенно, если постоянных укосин не будет. Иначе ваша конструкция от боковых нагрузок может сложиться.
После этого укладывают доски пола. Их очень желательно обработать со всех сторон антибактериальной пропиткой для древесины, непосредственно контактирующей с грунтом. Есть два таких состава у «Сенеж». Один из них так и называется «Сенеж», другой «Сенеж-Ультра». Отличаются тем, что «Ультра» не окрашивает древесину, а «Сенеж» придает ей зеленоватый цвет. Если покрывать все будете темной морилкой, зелень незаметна, под светлую такой состав не годится.
После укладки пола доски лучше покрасить, иначе, пока закончите строительство они испачкаются. Потому потратьте время, нанесите лак или тонирующие краски на основе масла — лучший вариант для дерева на улице. Не путайте с масляными красками! Эти составы называют чаще маслом для древесины, потому что основа — масло, к которому добавлены защитные вещества и красящие пигменты. В результате древесина приобретает другой оттенок (хоть розовый или зеленый, если вам так захотелось), но фактура становится более четкой, а не закрашивается.
Средняя обвязка
Следующий шаг — установка средней обвязки, если она есть по проекту. Под брус в стойках вынимают четверть — небольшое углубление, в данном случае при брусе 100*100 мм, четверть — это 25 мм.
Далее каркас можно красить тем же составом, что и пол.
Об изготовлении перголы (открытой беседки почти без крыши) читайте тут.
Делаем крышу
Пока сохнет каркас деревянной беседки, собираете стропильную систему. Она представляет собой треугольники (смотрите на фото ниже).
Их устанавливают на каркас. В данном проекте свес кровли не предусмотрен. Потому их просто ставят строго вертикально и прибивают прямо к брусу верхней обвязки. Ставится такая крыша легко, но вот дождь будет сильно заливать внутрь даже при незначительном ветре.
Если будете делать со свесами (крыша выступает за периметр беседки), то в брусе придется выпиливать «посадочные места» под стропила. Они имеют вид треугольников (смотрите фото).
Варианта показано два. На самом деле их больше, но так как крыша получается небольшая, то и первого, самого простого, будет достаточно. Чтобы не возится с каждым треугольником, подпиливая древесину наверху, делают шаблон. Берете кусок доски, выпиливаете отверстие нужной формы, примеряете, проверяете, подгоняете. Потом просто приставляете поочередно ко всем стропилам, обводите тонко заточенным карандашом и вырезаете. Чем вырезать удобнее? Электролобзиком, но можно и ручной пилой. Подготовив все треугольники, закидываете их наверх и устанавливаете (длинными гвоздями наискосок с дух сторон, можно еще уголками закрепить). Перед фиксированием не забудьте проверить вертикаль и горизонталь.
После установки треугольников, набиваются поперечины: две по обе стороны от конька, и дальше с шагом, который зависит от типа и вида кровельного материала. Под мягкую черепицу, например, вообще сплошная обрешетка нужна. Затем вся стропильная система красится. И после монтируется кровельный материал (в данном случае металлопрофиль) .
Отделка
Последней прибивается отделка нижней части. В этом проекте использована вагонка, которая потом покрашена маслом для дерева.
Эта дачная беседка из разряда «просто, быстро, дешево». Имея ее как пример, вы сможете сделать что-то свое, более, на ваш взгляд, привлекательное. Вот, например, что получилось по тому же проекту, но в другом исполнении: обшивка веранды из блокхауса, который покрашен в светлый цвет, а каркас — в темный.
Несколько более сложных проектов с чертежами и размерами выложим ниже, а еще более интересные фото, но уже без чертежей в самом низу. Может кому-то пригодится…
Эскизы беседок с чертежами и размерами
Имеющиеся размеры можно пропорционально увеличивать или уменьшать. Важно, чтобы вы понимали, что при значительном увеличении размеров, каркас требуется более мощный. Не забывайте об этом, и все у вас получится: беседка сделанная своими руками будет красивой и надежной.
Простая беседка из дерева
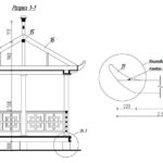
Почти тот же проект, но с другими размерами: выше поднята верхняя точка крыши, из-за чего визуально она кажется легче. Беседка тоже четырехугольная, крыша — шатровая.
При устройстве такой крыши самые проблемные — это два места (узла), обозначенные кругами. Как их делать, смотрите на фото ниже.
Беседка в китайском стиле (с чертежами и размерами)
Проект со всеми размерами, разметкой фундамента, стропильной системой кровли и т.п. Скомпонован в фотогаллею.
Внешний вид деревянной беседки в китайском стиле
Главный фасад — высота от пола до верхней обвязки 2,160 м
Главный фасад без кровли: вертикальные стойки 150*150 мм
Вид сбоку . Ограждение (перила) в высоту 740 мм, приподнято на 150 мм над уровнем пола. Высота перил в беседке получается 890 мм
Поперечный разрез деревянной беседки. На фото справа — как сделать приподнятые концы крыши
Продольный разрез
План расположения столбиков под беседку
Нижняя обвязка. Места расположения стоек (брус 150*150 мм) отмечены крестиками
Верхняя обвязка
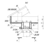
Установка балок перекрытия (цифры — это обозначение материала с спецификации)
Стропильная система
Детализация узла 2 — как устанавливать стойки
Как сделать ступеньки в веранду — узел 2
Крепление стропильной системы к верхней обвязке — на деревянные штыри
Детализация ограждения
Спецификация с размерами и объемом необходимых пиломатериалов под этот проект деревянной беседки
Спецификация с размерами и объемом необходимых пиломатериалов под этот проект деревянной беседки
Большая беседка на фундаменте
Перед тем, как построить эту беседку требуется сделать ленточный фундамент. Его параметры зависят от грунтов, от материала, который вы собираетесь использовать для каркаса: металл или древесину, и того, чем собираетесь ее остеклять. В общем случае ширина ленты около 20 см, глубина залегания — на 20-30 см глубже уровня плодородного слоя. На пучнистых грунтах лучше сделать свайноростверковый фундамент.
Чертеж беседки-качели
Беседка-качели требует особого внимания: крепят ее очень прочно, чтобы возникающие переменные нагрузки не расшатали и не перевернули конструкцию. Для этого, можно ножки продлить вниз, под них вырыть яму, засыпать щебнем, утрамбовать, а потом все залить жидким бетонным раствором. Если каркас делаете из трубы, вопросов не возникает, для дерева можно использовать «П»-образные крепления с вмонтированным в нижнюю часть штырем. Вот его можно загнуть и залить бетоном.
Для еще большей надежности к ножкам приделывают поперечины, которые получаются чуть утопленными в грунте. Их забивают U-образными скобами.
Об изготовлении обычных качелей разных видов можно прочесть тут.
Фото оригинальных беседок из дерева без чертежей
Это вариант — и каменный и деревянный. На колоннах из бутового камня установлены опры из бруса
Деревянная беседка в современном стиле
Для любителей нестандартных решений еще она беседка из кругляка, в интерьер которой отлично вписаны два дерева
Тоже интересно: беседка из бутылок
Стиль тот же — в качестве опор использованы засохшие деревья
И совсем сказочный стиль: беседка, похожая на избушку бабы-яги
Это реализовать проще, но только тем у кого с пространственным воображением все нормально
Для любителей основательных построек: беседка из камня
Оригинальная беседка из дерева восьмигранной формы
Беседка, оформленная в китайском стиле
Источник


















































