Каждому частному владению, будь это дачный или приусадебный участок, нужна ограда. Ещё до проектирования определяют, из чего её сделать, потому что от этого зависит общая стоимость всего оградительного комплекса. Основным его звеном являются ворота, которые, как правило, дополняет встроенная или примыкающая калитка. Для изготовления этих въездных и входных сооружений специализированные фирмы предлагают клиентам различные стройматериалы, начиная от металлической сетки-рабицы, заканчивая кованым металлом.
Калитка из сетки рабицы и профиля
Немало потребителей для возведения ограды своими руками выбирают, пожалуй, самый дешёвый материал, названный по имени его изобретателя немецкого инженера Рабица. Это своеобразное плетёное полотно, полученное из низкоуглеродистой стальной проволоки, оцинкованной или покрытой полимерным слоем. Оно используется для возведения оградительных сооружений. Если из него сделаны ворота, забор вокруг приусадебного участка, то примыкающая калитка должна быть такой же. Иначе будет нарушен единый стиль и испорчено общее впечатление от хорошо выполненной работы.
Характеристика материала
Преимущества, которое имеют сооружения из сетки-рабицы:
- высокая прочность;
- быстрый монтаж своими руками с минимумом комплектации;
Пример забора и калитки из сетки-рабицы
- низкая цена;
- очень хорошая светопроницаемость;
- простейший уход.
Качество рабицы зависит от следующих факторов: толщины проволоки, размера ячеек, слоя покрытия для защиты от коррозии. Чем больше диаметр проволочной нити и мельче ячейка, тем выше прочность сеточного полотна, которую можно определить по весу рулона: на первосортный материал уходит больше стали, оцинковки, полимерного покрытия.
Основной недостаток сетки-рабицы в том, что она не защищает территорию от пыли, ветра, от чужих глаз и уличного шума. Но, несмотря на это, в строительном деле она очень популярна. Потому что для некоторых дачников это ничтожное неудобство по сравнению с перечисленными достоинствами. А главное, из неё легко и просто соорудить своими руками любую ограду с воротами и калиткой.
В продажу сетка-рабица поступает в следующих вариантах:
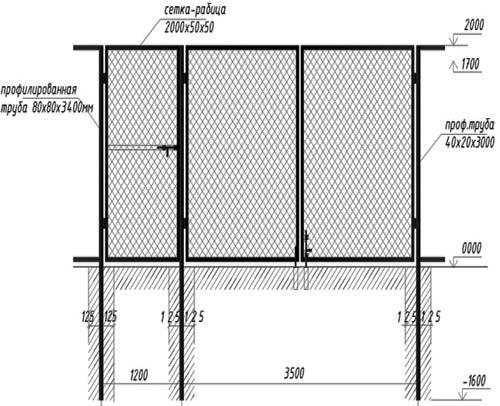
Схема с размерами калитки и ворот из сетки рабицы
- стальная проволока её ничем не покрыта, требует покраски;
- проволочная нить с гальваническим цинковым покрытием;
- оцинкованное полотно с антикоррозийным полимерным слоем различного цвета.
Проволочная нить производится диаметром в 1,8 мм, 2 мм и 2,5 мм. Ячейки бывают ромбовидные, квадратные, шестигранник. Наиболее популярным является полотно с квадратами 50х50 мм. Продаётся в рулонах высотой 1,5 м и больше, а длиной до 10 м. Чтобы сделать дверцу калитки, достаточно отрезка сетки шириной в 1,5 м, который остался после того, как возведён забор и въездные ворота.
Стоимость рабицы такова, что затраты на калитку будут ничтожно малыми, по сравнению с установлением её из дерева, профнастила или кованого металла. На монтаж конструкции не будет затрачено много времени, а выполнить его своими руками очень просто. Эксплуатироваться будет не менее 50 лет, а за это время не потребуется практически никакого ухода.
Вариант конструкции калитки из сетки-рабицы и забора
А такое свойство сетки, как хорошая светопроницаемость, высоко ценится дачниками, у которых забор, калиточный вход и въездные ворота находятся в непосредственной близости к огородам и цветникам.
Установка калитки
Поскольку примыкающую калитку всегда устанавливают после того, как поставлены ворота, то инструмент, материалы, необходимые для её монтажа используются такие же. Понадобится болгарка, дверные петли, ножовка, молоток, сварочный аппарат и остаток рабицы шириной в 1–1,5 м. Для опор обычно подбирают квадратную трубу 4х4 см, а для поперечных лаг можно использовать профиль 4х2 см.
Не будет лишним, прежде чем строить, сделать чертёж калитки, на котором отразить её параметры, общий внешний вид, место крепления сваркой дверных петель, запирающего устройства и ручки. На бумаге определяют также, на какой высоте от земли будет навешена калиточная дверца.
Подробная схема для установки калитки из сетки
Если нет рядом распашных ворот, то одиночная калитка должна в некоторой мере компенсировать их отсутствие. Широту примыкающего калиточного входа обычно определяет сам домашний мастер, который решил смастерить его своими руками. Через него без проблем должна проезжать детская коляска, инвалидное кресло, мотоблок, садовая тележка. По высоте он должна соответствовать размерам ворот и забора.
Определив, какой по ширине должна быть примыкающая калитка, устанавливают третий, крайний опорный столбик. Технология его установки такая же, как при монтаже ворот. Он не понадобится, если калиточная дверца будет встроена в одну из широких створ. Тогда для её укрепления понадобится рама, вмонтированная сваркой в одну из широких створок.
Монтаж калиточной дверцы
Его осуществляют в следующем порядке:
- подготовка профильной трубы;
- монтаж калиточного каркаса;
- укрепление дверных петель;
- заполнение каркасной рамы сеткой Рабица;
- навешивание створки;
- зачистка, покраска металлических деталей.
На ширину калитки отрезают два куска профильной трубы, которые послужат сверху и снизу перекладинами для проёма. Для крепления в них и в опорных столбиках заранее надо сделать отверстия. Важно, чтобы горизонтальное положение лаг было выверено при помощи строительного уровня. Крепят сваркой, а не болтами, потому что ими нельзя крепить подвижные детали калитки, так как они со временем начинают расшатываться.
На горизонтальной, ровной поверхности сваривают каркас, к которому будет крепиться полотно рабицы.
Процесс изготовления калитки из сетки и профильных труб
Для него заранее из профильного металла заготавливают пять перекладин: горизонтальных и вертикальных по две и одну поперечную. Для того чтобы дверца закрывалась свободно, каркасную раму делают на 4 — 5 см уже калиточного проёма. Приваренная поперечина укрепит конструкцию, а также будет способствовать плотному прилеганию сетки.
Затем приступают к установке петель для дверцы, таких же, на которых держатся гаражные ворота. Завесы разъединяют, чтобы одну часть, ту, которая со штырём, приварить к опоре, а вторую к каркасу. Их месторасположение на стойке и определяет направление, куда будет открываться калитка: внутрь или наружу.
При разметке надо выделить некоторое пространство между землёй и нижним краем калитки. Сделать это необходимо, чтобы в зимнее время снег не мешал её нормальному функционированию. В процессе прикрепления сваркой петли могут перекоситься, поэтому каждую половинку временно крепят к размеченному месту.
Готовая к установке калитка из сетки-рабицы
Для этого в них и в опоре сверлят отверстия для саморезов, которыми и производится предварительная установка петельных деталей. Опять выверяют правильность горизонтальной установки петель, навесив пока ещё незаполненный каркас. Не на чертеже, а наяву оценивают пространство, которое должно быть между ним и поверхностью земли. После чего завесы окончательно приваривают, а сварочные швы зачищают с помощью шлифовального диска. Отрезок рабицы раскладывают на земле и делают все необходимые замеры. Затем болгаркой раскраивают, подгоняют к нужному размеру створки.
Выверенное полотно фиксируют на каркасе проволокой. Её протягивают через крайние ячейки и сваркой прихватывают к основанию.
Края сетки необходимо немного загнуть внутрь, чтобы они плотно примыкали к каркасу, не травмировали торчащей проволокой. Некоторые умельцы для закрепления сетки-рабицы своими руками используют арматурный стержень. Также пропускают его через крайние ячейки и приваривают к каркасной раме.
А ещё для этой цели можно использовать пластиковые зажимы, которые применяются для крепления электропроводки.
К навешенной дверце изнутри сваркой или болтами прикрепляют небольшую металлическую задвижку. Возможно, это временная деталь, пока хозяин не смог определиться со стационарным калиточным запором. Все неокрашенные детали зачищают и красят такой же краской, которой окрашены ворота. Оцинкованная сетка не нуждается в зачистке, но покраска ей не помешает. А проволоку с полимерным покрытием такие процедуры могут только испортить. Им она подвергалась в заводских условиях при соблюдении всех технологических правил.
Последнее действие по установке калитки своими руками – это оснащение его металлической задвижкой или запорным устройством. Для створки из рабицы, скорее всего, подойдёт накладной замок, который можно прикрепить на стыке каркасной рамы и поперечной перекладины.
Смонтированный на калитку электромеханический замок
Выбирать следует такой, который предназначен для наружного использования, является влагостойким, а при его установке не будет проблем. Для удобства желательно, чтобы изнутри он открывался простым поворотам круглой ручки.
Для установки накладного замка нужна прочная пластина из нержавеющей стали, которую сваркой присоединяют к стыку каркаса и укрепляющего поперечника с внутренней стороны.
На ней будет располагаться замочная конструкция. К опорной стойке саморезами в предварительно просверлённые отверстия прикрепляют металлическую пластинку с выемкой для защёлки. Замок вставляют так, чтобы вход для ключа оказался извне. А изнутри очень удобно, если он будет открываться поворотом круглой ручки.
Вариант задвижки для самодельной калитки
Надо предусмотреть, чтобы до неё нельзя было дотянуться рукой с улицы. Позже над ним сваркой можно установить какой-либо козырёк для защиты калиточного запора от атмосферных осадков.
Некоторые домочадцы, чтобы сделать прозрачную сеточную калитку более привлекательной, украшают её яркими рисунками из цветной проводки или других красочных синтетических материалов. Клеточная фактура служит для них, словно канва для вышивки крестиком. Таким же способом декорируют и ворота, даже забор. Превосходно смотрятся орнаментальные композиции из цветов или животных, а стилизованные изображения героев сказок и детских мультфильмов, выполненные своими руками, вызывают восторженные отзывы у детворы.
Если приусадебный участок большой, то может понадобиться ещё одна калитка с противоположной стороны.
Это будет очень удобно, так как можно сократить расстояние при выходе из дома на соседнюю улицу. Так называемый чёрный ход необязательно должен быть из такой же сетки Рабица. Его можно оборудовать с использованием иных стройматериалов. Для одиночно стоящей калитки потребуется установка двух несущих опор. Здесь они могут быть установлены в облегчённом виде, так как на обе будет воздействовать лёгкий вес дверцы из рабицы.









