Откатные или распашные? Распашные ворота хороши тем, что просты и дешевы. Но зимой, при большом количестве снега, открыть их можно только основательно поработав лопатой. Когда нужно на работу — это совсем не радует. Этого недостатка лишены откатные или, как говорят, сдвижные/раздвижные ворота. Цельная конструкция, закрывающая весь въезд, отъезжает в сторону, прячась за забором. Держаться они могут на обычной или консольной балке, а могут просто ездить по рельсам. В любом случае, откатные ворота своими руками сделать вполне под силу.
Конструкции
По типу откатные (сдвижные, раздвижные) ворота бывают:
-
- Консольные — с направляющей балкой (шиной). Балка имеет П-образный профиль, внутри перемещаются ролики. Это самый популярный вид откатных ворот (см. видео ниже).
Консольные ворота с нижней балкой По месту ее расположения они бывают:
- с нижней балкой;
- средней балкой;
- верхней балкой.
- Консольные — с направляющей балкой (шиной). Балка имеет П-образный профиль, внутри перемещаются ролики. Это самый популярный вид откатных ворот (см. видео ниже).
- Подвесные. В этой конструкции тоже есть балка, но она опирается на оба столба по сторонам от ворот. Она тоже имеет особое строение, похожее на букву «П» только с загнутыми внутрь краями. Внутри также имеются ролики, на них висит полотно ворот. Так полотно и перемещается.
Подвесная конструкция - Откатные по рельсу. В грунте монтируется рельс, на нижнюю часть створки ворот прикрепляются ролики. Полотно катается по направляющей. Конструкция самая простая, но ее минус в том, что рельс и сами ролики забиваются снегом, грязью, листьями.
Откатные ворота на рельсе
Какие лучше
Какая конструкция лучше — сказать трудно. Если говорить о надежности, то самый лучший выбор — подвесная конструкция. Все легко и надежно, практически неубиваемая система. Ворота такого типа эксплуатируются на предприятиях десятки лет. Их недостаток — балка ограничивает высоту въезжающего транспорта, что иногда важно. Но сегодня есть модели с составными балками, позволяющие при открытых воротах снять перемычку над въездом, а потом вернуть ее на место.
Самая дешевая и простая в исполнении — система на рельсе. Эти откатные ворота своими руками собрать проще всего. Но возникающие при эксплуатации проблемы делают ее непопулярной.
Из всех приведенных конструкций самая дорогая и сложная в исполнении — консольная, тем не менее именно она ставится чаще всего: правильно сделанная она не доставляет неудобств при эксплуатации. При выборе нужно иметь в виду, что при ее устройстве справа или слева от ворот требуется расстояние, в полтора раза больше, чем ширина полотна: кроме самой створки есть еще техническая часть, которая выступает сбоку примерно на половину длины.
Подробно типы откатных ворот, особенности конструкции и построения рассмотрены в видео.
Как сделать консольные откатные ворота
Эта конструкция хороша тем, что над проездом нет балок. Но она — самая дорогая в устройстве. Дело не столько в системе роликов, сколько в необходимости устройства фундамента с металлическими закладными, к которым затем будет крепиться консольная балка. Если столбы уже есть, фундамент заливается перед ним и вдоль забора на длину технического выноса, который необходим для компенсации нагрузки, создаваемой полотном.
Даже если делают консольные откатные ворота своими руками, комплект, состоящий из направляющей балки, роликов, концевых роликов и уловителей покупают обычно в фирме. Все запчасти рассчитываются исходя из размеров полотна, материала каркаса и типа обшивки: вес имеет существенное значение. Потому желательно со всеми этими параметрами определиться заранее.
Зная длину несущей балки, вы сможете рассчитать необходимый размер фундамента. По типу — это ленточный фундамент, котлован под него копают ниже глубины промерзания грунта (для каждого региона она своя), в который закладывают армированные опоры под пластины с роликами, а также устанавливают стойки. К этим стойкам затем крепится комплект верхних роликов, удерживающих полотно и не дающих ему раскачиваться.
Как рассчитать фундамент под крепление для консольной балки
Сложного при расчете ничего нет. Фундамент по длине равен почти половине длины пролета. Если пролет 4 метра (ширина проезда или расстоянием между столбами), то фундамент должен быть 1,8-2 м. Ширина его 40-50 см, глубина — ниже глубины промерзания грунта для региона.
Котлован выкапывают еще на 10-15 см глубже — под гравийно-песчаную подушку. Этот фундамент армируют (по типу ленточного), в верхней его части к арматуре приваривается швеллер (18 или 20) и все это заливают бетоном. Швеллер выставляется в «нулевой» уровень, то есть он должен стоять на одном уровне с уровнем грунта или материалом, которым отделан двор.
Есть более дешевый и быстрый вариант, но по надежности он уступает описанному выше. В грунт вкручивают три винтовых металлических сваи, к ним приваривают швеллер.
Установка роликовых опор
К закладному швеллеру привариваются шпильки, к ним потом на болтовых соединениях крепятся платформы с роликами. Иногда можно встретить варианты, когда платформы приварены сразу к закладной. Это неправильно. Существует довольно большая вероятность того, что фундамент или столб забора даст усадку. Даже небольшое смещение — и ваши ворота работать не будут. Если ролики со шпилек можно снять, шпильки переварить и все собрать на место, то как корректировать если платформа приварена? Срезать? Сложно, долго, без гарантий. Так что лучше в этом случае делать все по правилам.
При покупке обратите внимание на роликовые каретки и на сами ролики. Это обязательно закрытые подшипники качения. Они обычно располагаются в два ряда по 4 штуки в каждом. Смазка в них должна быть морозостойкой — нижний предел температур -60°C. Осмотрите платформу, на которой они крепятся. Она должна быть стальной, литой, хорошего металла с оцинкованной поверхностью, покрыта защитной смазкой.
Покатайте ролики. Все должны кататься без усилий, и не должны иметь люфта (не должны шататься из стороны в сторону). Тогда можно быть уверенным, что ворота будут ездить легко и откатной механизм будет работать продолжительное время (некоторые фирмы дают гарантию 10 лет). Ведь большая часть нагрузки приходится именно на ролики, потому их качество ключевой момент, как и сбалансированная конструкция полотна.
Остальные этапы монтажа более понятно будут описаны в фото-отчете: ворота собраны самостоятельно, без привлечения специалистов.
Про автоматику распашных ворот читайте тут.
Откатные ворота своими руками: фотоотчет с пояснениями
Ворота ставились в Москве, соответственно цены — столичные. Ставили их в 2010 году, с тех пор комплекты сильно подешевели. Например, «свежая» цена привода для полотна весом не более 400 кг (есть до 1,2 т) — около 100$, но это — бюджетный вариант. Во времена строительства приобретены комплектующие фирмы Rolling Center (лучшие тогда на рынке) с ведущей балкой длиной 6 метров. Были также заказаны отдельно верхний ловитель и кронштейн. Все с доставкой обошлось около 600$.
Также были куплены следующие материалы:
- профильная труба 80*60 мм — 6 м, 60*40 мм — 18 м, 40*20 мм — 36 м;
- швеллер — 180 мм — 3 метра, 200 мм — 2,4 метра;
- арматура 12 мм — 6 м;
- электроды — 2 кг;
- краска — 3 банки, кисти, заклепки;
- цемент М-400 — 5 мешков;
- профнастил покупался при изготовления забора.
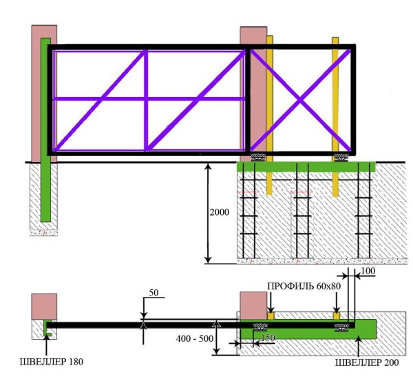
Первым делом сварили каркас для ворот с противовесом. Раму (черным цветом) делали из профильной трубы 60*40 мм, перемычки и внутренний каркас (сиреневый) из трубы 40*20 мм. Внизу приварена направляющая балка разрезом вниз.
Внутренний каркас варили с отступом от края — по 20 мм с каждой стороны. Так удобнее потом крепить профлист, при желании можно и изнутри обшить.
Сначала залили фундамент. В него установили арматуру, сверху швеллер спинкой вверх. Вплотную к швеллеру две стойки из профилированной трубы 80*60 мм. Одна стойка примыкает к столбу, вторая выставлена вертикально на расстоянии 120 см. На них потом навешиваются ролики, которые придерживают полотно сверху. С другой стороны, вдоль ответного столба установили швеллер 180 мм.
На ответной части к швеллеру вверху и внизу закреплены уловители, которые не дадут воротам болтаться при ветре.
Следующий шаг — установка пластин с роликами. Они крепятся к закладным. В данном случае это швеллер, потому пространство получилось большое. Когда делали фундамент, его сделали слишком высоким, потому пластины приваривались непосредственно к закладной. Это непрактично: если поломается ролик, поменять его будет проблематично. Обычно приваривают площадку, к которой потом на болтах крепят площадку с роликами.
Готовый каркас ворот просто накатывают на закрепленные ролики.
После установки на опорную балку с обоих концов надевают заглушки. С дальней стороны устанавливается еще упорное колесо, которое в закрытом положении заезжает в нижний уловитель, приподнимая ворота и снимая нагрузку с роликов.
Теперь, чтобы ворота не «гуляли» в верхней части (они сейчас ничем не закреплены), к стойкам (80*60 мм) крепят комплекты верхних роликов — по одному на стойку. Их практически надевают на раму. Теперь имеющиеся внутри ролики будут придерживать ее вверху.
Все, откатные ворота своими руками собраны и готовы к эксплуатации.
Если остались вопросы, посмотрите видео. В нем собирают готовый комплект, весь процесс станет понятнее.
Видео
Несколько видео с разными конструкциями откатных ворот. Первое — консольные на средней балке. Проблем со снегом не будет, но внешний вид со двора — ниже среднего.
Эконом-вариант: откатные ворота для дачи. Конструкция проста до чрезвычайности.
Еще одни самодельный вариант. Тут в трубе 60*60 мм, пропилен просвет, в который вставляются ролики. Конструкция взята стандартная, собрана из разных комплектующих.





















