По старой традиции на балконе и лоджии хранятся вещи, которым не нашлось места в квартире. А чтобы эти небольшие по размерам помещения не превратились в свалку, необходима хорошая система хранения. Самый практичный вариант -встроенный шкаф на балкон или лоджию. Часто все что требуется — сделать стройки, на которых будут держаться полки и поставить двери. С такой задачей легко справится своими руками даже при минимуме навыков.
Материалы и конструкции
Конструкцию встроенного шкафа можно разделить на две части: это каркас и двери. Иногда, если необходима боковая стойка, есть еще и обшивка.
Из чего делают каркас
Стойки для шкафа чаще всего делают из бруса. Сечение примерно 40*40 мм или 50*50 мм. Вариант неплохой, но на неотапливаемом балконе может быть высокая влажность. А дерево — такой материал, который изменяет размеры в зависимости от влажности. Есть еще один момент: не во всех регионах брус дешев.
Есть еще вариант — собрать каркас на профиле для гипсокартона. На него отлично крепится любой листовой материал типа ЛДСП, фанеры и т.д. Если брать оцинкованный, то никакие проблемы с влажностью не страшны.
Из чего сделать полки
Проще всего полки нарезать по размерам из листового материала. Это все тот же ДСП — обычный или ламинированный, толстая фанера, иногда можно использовать ОСБ, но полки для тяжестей надо желать на деревянном каркасе.
Крепить их можно на подготовленные на каркасе места — установленные бруски или на саморезы. Есть вариант — уголками прямо к стене. Но он хорош если стены можно просверлить саморезами сразу, иначе сажать каждую полку на дюбеля слишком долго. Тогда проще собрать каркас и к нему крепить.
Есть еще более простой способ сделать полки на балконе или лоджии: использовать металлические направляющие и кронштейны к ним. Эти системы применяют в магазинах, но для данного случая они более чем удобны: высоте меняется легко с достаточно небольшим шагом. Просто кронштейны перевешивают на другие отверстия.
При такой организации всего то и нужно, что поставить двери. Вот и готов шкаф на лоджии или балконе.
Можно, кстати, сделать нечто похожее и из деревянных брусков: выемки под полки с определенным шагом. Можно сделать надрезы пилой, а потом удалить стамеской.
Часто полки делают из нарезанных кусков досок. Так как ширина балкона обычно небольшая, в дело идут всякие обрезки. Только для того, чтобы они долго не теряли свой вид и легко вытирались, их необходимо чем-то покрыть. И хоть застекленные балкон и лоджия больше относятся к внутренним помещениям, лакокрасочные изделия берите для наружных работ, как и защитные пропитки. В них содержатся вещества, защищающие от воздействия ультрафиолета. Без них через пару лет древесина будет иметь жалкий вид.
Чтобы при работах в квартире не слишком «пахло» можно взять лак на водной основе. Он не создает пленки, но грязь в поверхность не впитывается.
Какие бывают дверцы
В шкаф на лоджии или балконе дверцы делают трех типов:
- обычные распашные;
- раздвижные — по типу шкафа-купе;
- рольставни.
Все эти дверки могут быть на всю высоту шкафа, но удобнее делить его на две-три части, и на каждую навешивать свои дверки.
Самые недорогие — распашные дверки. Нужны сами дверцы и петли, а «посадить» их на место легко самостоятельно. Дороже обходятся раздвижные системы. Нужны направляющие — верхняя, нижняя и боковые, а также система роликов, которая устанавливается на дверное полотно. Но это вариант привлекателен тем, что экономит место.
Самые дорогие — рольставни. Но они привлекательны тем, что идут готовым комплектом, а установка в основном «прилагается» к покупке.
О том, как собирать раздвижные дверки для балконного шкафа смотрите видео. Многое прояснится.
Как сделать балконный шкаф на деревянном каркасе
Сначала отрезаете 4 стойки на требуемую высоту шкафа. Если планируете его сделать до самого потолка, замеряете отдельно каждую, а не режете одинаковые. Высота часто прилично отличается. Нарезанные стойки крепят. Расстояние между ними определяет глубину шкафа, но чаще всего зависит от имеющегося места. Сколько есть, столько и используют.
Если есть три глухие стенки проблем нет. Бруски крепят на дюбеля. Приставляют брусок к стене, выверяют его вертикальность, насквозь сверлят отверстия под крепеж в нужных местах. Планку убирают, вставляют в дырки в стене пластиковые заглушки от дюбелей. Установив планку на место, прикручивают винтами к стене.
Если делают шкаф на балконе, одна сторона крепится к стене, а вторая — к элементам каркаса или только вверху и внизу — к потолку и полу (исползуем усиленные металлические уголки).
Еще вариант для подобного случая — если необходимо закрыть чем-то оконное стекло — возле окна поставить стенку (например, из ЛДСП), зафиксировать ее внизу и вверху уголками к полу и потолку, а потом прикрепить уже к стенке (и к потоку и полу) бруски каркаса.
Затем к стойкам прибивают поперечные бруски. Они придают всей системе высокую степень жесткости и на них будут опираться полки.
Чтобы не «гуляло» место возле стекла, эту часть тоже занимают полками. Так как ширина мебели получается разной, часто делают два отдельных небольших шкафа: на нижнюю и на верхнюю половины. Часто еще они отличаются по глубине: нижний можно сделать более широким и прятать туда более тяжелые и габаритные вещи. Верхний шкаф в этом случае можно сделать менее глубоким. В этом случае верх нижнего шкафа может использоваться как столешница.
Далее дело только за тем, какие и как сделать дверки. Самый оптимальный вариант — сделать раздвижные. Их схема на рисунке. Запчастей много, но разобраться можно.
Угловой шкаф на лоджии: фотоотчет
Сначала лоджия была обшита вагонкой. Сразу после этого из той же вагонки стали делать шкаф. Решено было желать угловой, чтобы не закрывать так уж сильно окно. С противоположной стороны шкаф занимает почти всю ширину, слегка не доходя до балконной двери.
Стойки не крепили. Прибили бруски на потолке и к полу, к ним стенки. Они получились короткие — в три дощечки. К вагонке стен прибили планки, на которые уложили ту же вагонку, вырезанную по получившейся форме шкафа.
Вверху и внизу дверного проема набили вагонку поперек проема. Замеряли оставшееся расстояние, вычли 1,5 сантиметра на неточности и такой длины нарезали вагонку на двери. Их потребовалось шесть штук. Сбили при помощи четырех поперечных планок сбили в двери. Навесили с использованием обычных петель.
В свободном пространстве между стенкой шкафа и обшивкой балкона прибиты две полки. Чуть позже добавили несколько выше со скругленными краями. Последним этапом прибили под потолком и на полу плинтуса (закрыть щели), потом шлифовали вагонку шкуркой и красили морилкой.
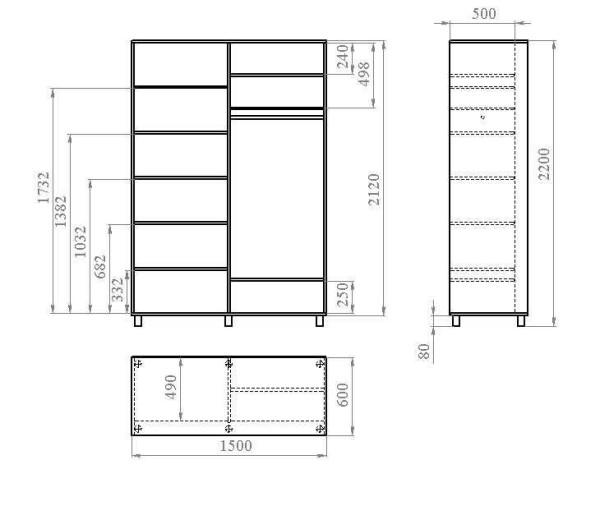
Чертежи и схемы
Говорить о каких-то стандартах относительно шкафов для балконов нельзя. И размеры и конфигурация, да и остекление у всех разное. Потому даже с размерами полок определяться приходится «по месту». Но несколько примеров, которые вы сможете изменить как вам нужно приведем.
Фото готовых шкафов на лоджии и балконе
































