Скамейки и лавочки на даче и в саду — это в первую очередь место отдыха. Но просто поставить скамейку — не интересно. Ведь можно создать красивый уголок. Чтобы не просто отдыхать, а наслаждаться природой и плодами своего труда. Есть много интересных идей. Причем обыгрываются часто самые простые конструкции такие, что эти скамейки своими руками может сделать любой человек, у которого руки из плеч растут.
Фото оригинальных скамеек (идеи для дачи и сада)
Как выглядят обычные лавки-скамейки знают все — видели, и не раз. Но обычную — самую простую — что-то не хочется. Особенно, если есть начали уже процесс украшения участка или пока только планируете. Почему бы не начать со скамейки? А там и другие украшения подтянутся. Стоит только начать.
В саду или возле дома хочется иметь больше зелени: цветов красивых и разных. Клумбы и цветники — это хорошо, но почему бы не объединить их со скамейкой.
Что может быть проще? Два деревянных ящика, в которых высажены цветы и между ними пару оструганных и отшлифованных досок. Эту лавочку можно возле стены поставить, а на стену набить пару длинных досок — будет спинка.
Не всем нравятся клумбы из дерева: древесина требует ухода, а без него быстро теряет внешний вид. Особенно тяжело ухаживать за деревом, которое соприкасается с почвой. Вместо деревянных ящиков могут быть, например каменные или бетонные тумбы.
Такую скамейку на даче своими руками сделать совсем просто. Можно найти готовые бетонные клумбы или сделать нечто подобное. Доску можно купить обработанную, а можно самим этим заняться. Вместо доски может быть половина бревна — смотря в каком стиле оформляется участок. Закрепить сиденье проще при помощи металлического уголка. К бетону он крепится при помощи дюбелей, к дереву — саморезами снизу или болтами насквозь.
Если у кого-то есть крупные растения в прочных вазонах, можно реализовать следующую идею. В этом варианте скамейка охватывает растения. Чтобы не было неожиданностей, вазоны должны быть очень прочными….
Есть подобный вариант лавки из досок и без растений: может нужно на веранде или в беседке поставить. Опоры складываются из досок одного размера, а сиденье — из бруса.
И еще вариации на ту же тему: в качестве опоры использованы пустотелые строительные блоки. В отверстия вставляются обработанные бруски. Это и есть сиденье скамейки. Только грани бруса скруглите, или сидеть будет неудобно.
Для этой садовой скамейки желательно найти блоки большого размера, с толстыми стенками. Если нет — нужно надежно скрепить блоки один с другим. Вся задача в том, чтобы закрепить сначала блоки (например шпильками), а потом к ним — бруски (болтами или нагелями).
Скамейки из бревна
Если вашу участок оформляется в стиле рустик или этно, стандартный подход вам не подойдет. Лучше всего использовать в этом случае бревна — с корой или без — это уже ваш выбор.
Сиденье для скамейки из бревен — распиленный вдоль ствол большого или среднего диаметра. Спинка — или меньший по диаметру ствол, или просто срез ближе к краю. Ножки можно сделать тоже из нешироких кусков бревна (смотрите на фото ниже).
Ножки и сиденья между собой соединяются металлическими штифтами: под штифт в обоих деталях сверлятся отверстие чуть меньшего диаметра. Штифт забивается в одно из них, вторая часть насаживается и тоже забивается, но уже бьют не по штифту, а по древесине. Чтобы не оставалось следов, укладывают кусок ненужной доски и по нему стучат молотком (или кувалдой). Такое соединения должно быть вполне надежным, но для уверенности можно установить два или три штифта, а можно — стесать немного бревна, сделав ровную площадку на одинакового размера на обоих соединяемых деталях. Увеличив площадь опоры, повысите надужность крепления сиденья: все таки бревно весит немало.
Еще один интересный вариант в стиле «этно» представлен на фото выше. Он реализован в камне, но сделать эту скамейку можно и из бревна. Сиденье — очень толстая доска, ножки — большая часть колоды большого диаметра. В колоде вырубается паз под укладку сиденья. При наличии инструмента (топором, болгаркой или бензопилой можно вырез сделать) сделать просто.
Часто на даче необходим рабочий стол. Из бревна можно сделать не только скамейку, но и стол. Вариант такого ансамбля — на фото. Только столешница сделана из досок, все остальные детали — бревна разных диаметров или из половинки.
Большая степень обработки присуща следующей скамейке в том же стиле. Спинка, ножки, подлокотники сделана из толстых и не очень веток, сиденье — из ошкуренной и обработанной (очищенной от коры и отшлифованной) необрезной доски.
Почти также сделана другая скамья. Только расположены доски и ветки в другом направлении и получается уже другой вид. Скамейка своими руками такого типа не требует большого мастерства. В данном случае, чем небрежнее получается работа, тем декоративнее результат.
Вокруг дерева можно сделать площадку для отдыха и скамейку. Конструкции несложные, сделать настил так вообще просто.
Дополнить группу отдыха можно качелями и беседкой. А над скамейкой можно поставить перголу — это «прародительница» обычной арки — один из видов легкой беседки. А чтобы релаксация была уж совсем полной, можно сделать пруд, фонтан или водопад.
Из металла и дерева
Мало кто будет у себя на даче ставить полностью металлические скамейки. Они, конечно, могут быть очень красивыми, но летом разогреваются до неимоверных температур, а чуть похолодает — на них не сесть, так как слишком холодные. Этих недостатков лишены скамейки из металла и дерева. Ножки и несущую конструкцию делают из металла, а сиденье и спинку (если есть) — из дерева. Причем тоже есть интересные лавочки в современном дизайне.
Из профиля сварены прямоугольники, к боковым стенкам приварены перемычки, на которые опираются доски сиденья. Просто, стильно, надежно, функционально.
В более усовершенствованном виде — с подлокотниками, спинкой, мягкими подушками на сиденье такая конструкция может выглядеть так, как на фото. Широкое сиденье превращает лавочку в диван, а комфорта добавляют подушки — обтянутый тканью мебельный поролон. В том же стиле сделаны и столики — рама из профтрубы и столешница из досок.
Один важный момент: если делаете сиденье или столешницу из нескольких прилегающих элементов, их не нужно стыковать впритык. Между соседними досками/брусками должен оставаться зазор в 3-4 мм. Древесина то разбухает, то усыхает. Чтобы при этих процессах поверхность оставалась относительно ровной, необходим зазор.
Если необходимы более плавные линии — для семей с детьми — можно трубы согнуть и сделать садовые скамейки и стол со скругленными гранями. Эта садовая мебель совершенно безопасна. Обычную круглую или профтрубу изгибают, оставляя по бокам в форме буквы «П» с широкой спинкой. Длина этой спинки и есть длина лавочки. Для стола габариты делают чуть больше: ножки и и спинка длиннее.
Делают по две одинаковые заготовки на стол и скамейку. Далее нарезают доски одинаковой длинны. Для сиденья около 40 см, для столешницы не менее 55 см. Крепят к трубам мебельными болтами с плоской шляпкой. Чтобы шляпки не торчали, под них засверливают отверстие чуть большего диаметра.
Об основах планирования участка читайте тут, а чем его можно украсить — в этой статье.
Скамейки из досок
Самая многочисленная группа — лавки и скамейки из досок. Есть конструкции, больше напоминающие диваны, особенно если на них уложить мягкие подушки — и полежать можно.
Садовую мебель в современном стиле собирать просто: прямоугольники с перегородками из более тонких досок, соединенные между собой.
Даже обычная конструкция дачной лавочки может стать эксклюзивной, если подойти к ней с фантазией: вместо ножек и подлокотников использованы деревянные колеса. Получилась дизайнерская вещь.
И самая простая из возможных — доска на ножках в виде буквы «Х». Такие лавки строили столетия назад, можно их увидеть и сегодня.
Из досок можно сделать скамейку в современном стиле: в виде буквы «П». При такой конструкции главная задача — обеспечить жесткую фиксацию ножек и сиденья: распирающие силы ничем не компенсируются. В данном случае важно брать толстую доску или брус, чтобы она не прогибалась. Можно ставить доску «на ребро»: так жесткость будет больше. Для повышения надежности можно установить снизу уголки.
На фото вариант с запилом под 45°. Имея стусло или циркулярную пилу точного реза добиться несложно. Точно состыковав заготовки и скрепив их получим угол 90°. Если сиденье не буде прогибаться, служить будет долго…
Интересный и надежный вариант скамейки представлен на фото ниже. Ножки собираются из из досок разной длины: каждая вторая короче на ширину доски для сиденья. Интересная идея. Сделать такую скамейку легко: важно выдержать размеры, а соединяется все очень просто: гвоздями в пласть сиденья.
Возможно, вам будет интересно прочесть, как оформить и сделать садовые дорожки.
Оригинальные скамейки
Вот, кажется, что еще можно придумать.. а оказывается, многое. Например, прикрепить сиденье к большому камню.
Сделать конструкцию из стволов бамбука.
Или камня.
О том, какие бывают качели (для взрослых и детей) и как их построить читайте тут. А в этой статье можно прочесть о строительстве детской площадки, про песочницы написано отдельно — здесь.
Как сделать скамейку: фотоотчеты
Из камня делать лавки не будем — оборудование есть не у всех, а из разных деревяшек — можем. Расскажем об изготовлении несложных, но необычных конструкций. Чтобы сделанная своими руками скамейка была предметом гордости.
Лавка без спинки
Конструкция простая, но смотрится интересно за счет специфического материала. Для ножек использован брус со скругленными краями. Если есть у вас бревна маленького размера, можно обтесать их по бокам. Получится практически тот же эффект. ТАкой материал не является такой уж редкостью, необычно собраны из него ножки: бруски уложены один на другой плашмя. Это и придает изюминку и добавляет привлекательности.
Эта скамейка без спинки имеет длину — около 120 см, ширину — около 45 см, высоту — 38 см. Скруглить грани бруса можно при помощи фрезы, а можно найти подобный профилированный. Он стоит дороже, но работать с ним будет проще: он уже хорошо обработан и соединяется просто.
В зависимости от найденного сечения бруса рассчитаете длину, которая вам потребуется. Определите, сколько брусков придется сложить один на другой, чтобы получилась нужна высота. В данном случае на одну ножку ушло 5 брусков. Итого 45 см * 5 шт — 2,25 м. На две ножки понадобилось 4,5 м бруса. На сиденье использовалась доска 40 мм толщиной и шириной 90 мм. Для сиденья нужны 5 досок длиной 1,5 метра. Получилось 1,2 м * 5 шт = 6 м.
Сначала нарезаем и обрабатываем доски для сиденья. Их грани необходимо закруглить. Если нет шлифовальной машинки или фрезера, придется работать наждачной бумагой, а можно найти такую доску или договорится на лесопилке, чтобы вам ее обработали, а еще отшлифовали: намного меньше работы будет. Итак, нарезаем одинаковой длины доски, шлифуем и покрываем лаком (с тонировкой или без — ваш выбор).
Бруски для ножек сложите один возле одного, выровняв их края. При помощи угольника и карандаша нанесите линии, где будет размещаться крепеж. Расстояние между линиями — 7-10 см.
Штифты можно взять металлические, а можно сделать нагели — вырезанные из дерева. Под них сверлятся отверстия чуть меньше диаметра, глубина отверстия — половина длины штифта. Потом они забиваются в одну деталь, сверху в такое же отверстие насаживается вторая деталь. Соединение надежное, но для уверенности можно добавить клея, хотя тогда конструкция получится неразъемной.
При штифтовом соединении основная задача сделать отверстия строго одно над другим, чтобы насаженные на штифт детали давали ровный край. Часть работы сделали — начертили линии, где будем сверлить, теперь необходимо отмерить одинаковое расстояние от края. Для этого сделаем шаблон. Берем отрезок планки шириной около 1,5 см. На таком расстоянии от края брусков будем сверлить отверстия. Приложив его ровно по краю отмечаем места пересечения с нанесенными перпендикулярными линиями.
Штифты будем устанавливать в шахматном порядке, потому сверлить отверстия будем через одно пересечение. Также отверстия на одном бруске с разных сторон делаем в шахматном порядке. Подобным образом — на штифтах — делается соединение ножек с сиденьем: по два штифта на каждую планку.
Технологически такой тип соединения правильный, но он сложный и требует определенного мастерства. Можно поступить проще. Сложить все бруски один на другой, закрепить струбцинами, просверлить насквозь в двух-трех сетах — по центру и по краям, соединить длинной шпилькой, с подложенными под шляпку и гайку шайбами. К собранным таким способом ножкам планки сиденья можно прибить гвоздями сверху или попытаться сделать штифтовое соединение.
Если прибивали сиденье гвоздями, возьмите немного мастики для дерева подходящего цвета, добавьте немного очень мелких опилок и размешайте. Этим составом замажьте места соединений. Когда высохнет, сровняйте шкуркой. Отшлифуйте все детали до гладкого состояния и покройте лаком или красками по древу для наружных работ (лучше не укрывными, а которые оставляют видимой текстуру древесины).
Как и чем можно покрасить древесину читайте в этой статье. В ней идет речь про вагонку, но приемы покраски остаются теми же, а составы надо брать для наружного применения.
Скамейка своими руками из сломанных стульев
В любом хозяйстве можно найти два старых стула. Должны они быть одинаковыми и еще достаточно прочными. Разбираем стулья, оставляя часть со спинкой и ножками. Соединяем две спинки при помощи брусков подходящего сечения.
Для большей жесткости внизу, на расстоянии порядка 20 см от пола, там, где раньше у стульев тоже были перемычки, делаем еще одну раму с поперечными перекладинами. Ее можно будет использовать как подставку для ног или для хранения каких-либо вещей.
После шлифовки красим полученную конструкцию. В этот раз краска должна быть обычной: разные породы древесины закрасить можно только укрывными красками. Наносить кисточкой или из баллончика.
Дело за малым: вырезать по размерам сиденье из толстой фанеры (толщина 8-10 мм) и обтянуть его поролоном и тканью.
Кресло/скамейка для сада из паллет
В хозяйстве пригодится все. Даже из грузовых паллет можно сделать садовую мебель. Причем разбирать их нет необходимости: одну используем для сиденья, из второй сделаем спинку. Понадобятся только хорошо обработанные дощечки для подлокотников и бруски для ножек.
В одной из паллет усиливаем места крепления, вставив куски брусков. Вставив, из прикручиваем саморезами с одной и с другой стороны.
Из бруса сечением не менее 100*100 мм нарезаем четыре одинаковых отрезка длиной 80 см. Прикручиваем их в тех местах, которые только что усилили. На ножки оставляем 20-25 см. Крепим четырьмя длинными самотезами — 150 мм и не короче.
Важно соблюдать вертикальность и оставить одинаковое расстояние на ножки. Тогда сиденье будет стоять ровно. Если есть погрешности по высоте, можно попытаться подпилить, но тогда пилить придется и сверху — чтобы подлокотники были ровными. Так что постарайтесь прикрутить ровно. С отклонениями от вертикали бороться можно только прикрутив ножку заново.
К задним стойкам крепим вторую паллету, а по бокам — дощечки для подлокотников.
Осталось вырезать из мебельного поролона кусок и обтянуть его тканью. Можно сделать подушки и для спинки. Если не собираетесь обрабатывать все досконально, а сделать кресло в стиле лофт, пройдитесь наждачной бумагой или шлифмашинкой, обработав все поверхности до гладкости. Покрыть можно краской, придающий древесине темный цвет.
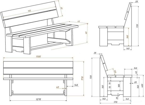
Чертежи скамеек из дерева
Видео-уроки
Несколько видео о том, как делать скамейки своими руками.






































