Дизайн-проект интерьера магазина нижнего белья Lavarice в ТРЦ «Саларис» — пример того, как коммерческое пространство может выйти за пределы привычного ритейла и стать архитектурным высказыванием. Площадь 131 м2, реализация — январь–май 2025 года. Над проектом работала команда бюро: главный архитектор Анастасия Колчина, ведущие архитекторы Варвара Сереброва и Анастасия Емельянова, архитектор Татьяна Бутринова, руководитель проекта Дарья Крайнова. Фотограф проекта — Дмитрий Суворов (@dimaplenka).
Запрос заказчика: узнаваемость без повторения
К моменту начала работы Lavarice уже был сформировавшеися сетью с опытом взаимодействия и с архитекторами, и со строителями. Запрос нельзя было назвать четко сформулированным: заказчик чувствовал, что существующие магазины выглядят достойно, но потенциал бренда раскрыт не полностью. Важно было сохранить преемственность с предыдущими интерьерами — в том числе с бутиком Lavarice Hollywood, — но при этом предложить новое, более глубокое и выразительное пространственное решение.
Фактически задача звучала так: усилить язык бренда, не разрушив его узнаваемости, и перейти от декоративных приемов к архитектурным.
Концепция: форма, масштаб, свет
В новом интерьере архитекторы переосмыслили визуальный код Lavarice через базовые архитектурные категории — контраст четкои геометрии и мягкои пластики, работу с масштабом человеческого тела и свет как инструмент эмоционального сценария.
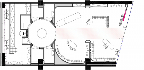
Исходные данные этому способствовали: вытянутое помещение, высокии потолок и минимальные инженерные ограничения. Это позволило работать с крупными объемами и выстраивать пространство не фрагментами, а цельной композицией.
Ключевым элементом стала скульптурная примерочная — цилиндрическии объем, воспринимаемыи почти как алтарь света. Вокруг нее выстраивается весь сценарии движения и восприятия. Этот прием команда рассматривает как универсальный и в дальнейшем использует его для всей сети Lavarice.
Пространственная логика и асимметрия
Цилиндр примерочнои вступает в диалог с прямыми линиями колонн и потолка. Контраст текучеи формы и рациональнои геометрии создает напряжение и динамику. При этом планировка не стремится к жесткои симметрии.
«Хотя мы редко используем симметрию, здесь планировка разбавлена легкои асимметриеи, что балансирует композицию и смягчает пафос интерьера, придавая пространству живости», — отмечает Анастасия Колчина.
Вдоль продольнои оси пространство раскрывается последовательно: вход, демонстрационная зона, примерочные. Сохраняется прозрачная перспектива и ощущение непрерывности, которое усиливают зеркала, размещенные над залом и работающие на глубину и визуальное расширение объема.
Примерочные как эмоциональное ядро
Внутреннее устройство примерочных было предложено заказчиком — это решение уже было отработано на предыдущих объектах сети. Архитекторы аккуратно интегрировали его в новую оболочку.
Свет внутри примерочных распределен так, что переотражается в зеркалах практически бесконечно. Он не слепит, мягко ложится на тело и не искажает цвета — принципиальныи момент для бренда, работающего с бельем и телесностью. Здесь свет становится не техническим инструментом, а частью доверительного диалога с посетителем.
Материалы и фактуры: монохром и напряжение
Композиция интерьера строится на контрасте пластичных монолитных масс и легких линеиных элементов. Монохромная песочная палитра отсылает к оттенкам кожи и песка, поддерживая тему естественности и телесности.
Тонкие металлические рейлы цитируют мотивы предыдущих интерьеров бренда, но здесь они работают еще и на ощущение невесомости. Сочетание плотной штукатурки и почти графичнои прозрачности металла создает внутреннее напряжение и ритм.
В отделке использованы матовые материалы с нейтральным блеском, которые не отражают свет напрямую, а рассеивают его, усиливая мягкость восприятия.
Свет как архитектурныи инструмент
Освещение вдохновлено природными сценариями — пещерами и балийскими храмами, где свет не подчеркивает форму, а растворяется в материале. В проекте он выстраивает градацию между открытои торговои зоной и интимным ядром примерочных, усиливая ощущение перехода и ритуальности.
Цифровой контент и порядок
У Lavarice сильныи визуальныи контент, поэтому важной частью проекта стал поиск оптимальных мест для экранов и лайтбоксов. Их расположение неоднократно пересматривалось, чтобы изображения не спорили с архитектурои, а становились ее продолжением.
Для персонала предусмотрены встроенные системы хранения — скрытые ниши и ящики, позволяющие поддерживать порядок без нарушения визуальнои чистоты пространства.
Реализация и командная работа
Проект был реализован в тесном сотрудничестве с командои Lavarice, техническим директором и постоянными подрядчиками бренда. Работы велись бережно: без демонтажа чернового потолка, с точнои интеграцией инженерных систем. Несмотря на сложную организацию процесса, строительство прошло быстро и слаженно.
Вся мебель и торговое оборудование выполнены по проекту архитекторов, что позволило сохранить целостность замысла от идеи до реализации.
Для команды этот проект стал примером того, как архитектура может передавать ценности бренда не через декор, а через форму, масштаб и свет. Lavarice в ТРЦ «Саларис» — это пространство, где покупка превращается в интимныи ритуал принятия себя, а коммерческии интерьер — в личныи опыт.
Проект не был стандартным: он подтвердил, что работа с телесностью и эмоциями в ритейле требует архитектурной точности, доверия между заказчиком и авторами и готовности искать выразительность в самых базовых инструментах профессии.





