Проектирование домов под ключ
Строительство домов с каждым годом стремительно набирает обороты. Одни хотят обзавестись собственным жильём, другие мечтают улучшить уже имеющиеся жилищные условия, переехав из квартиры в старой многоэтажке в комфортабельный загородный дом с красивым обустроенным участком и уютной планировкой. Чтобы воплотить мечты в жизнь, доверять возведение дома следует проверенным и отлично зарекомендовавшим себя строительным компаниям.
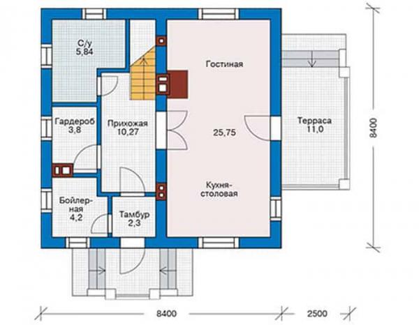
Проектирование как важнейший этап строительства дома
Многие ошибочно полагают, что услуги по проектированию домов требуются лишь при строительстве сложных с архитектурной точки зрения зданий. Однако возведение любого дома без наличия продуманного до мельчайших деталей проекта, может привести к существенным финансовым затратам в будущем. Ведь дом, который не отличается удобством, придётся не раз переделывать, занимаясь перепланировкой, что существенно ударит по семейному бюджету.
Проектирование как важнейший этап строительства дома
Сегодня проекты жилых домов достаточно легко найти в сети интернет, ведь владельцы интернет-ресурсов их нередко выкладывают в открытый доступ. Однако, скачав такой бесплатный проект, нельзя быть абсолютно уверенным в том, что он составлен настоящими профессионалами своего дела, и не содержит грубых технических ошибок. К тому же, он попросту может не подойти для вашего земельного участка.
Именно поэтому лучше не рисковать и заказать проектирование дома специалистам с практическим опытом и наличием соответствующих знаний. Обратившись для этих целей в одну из специализированных компаний, можно получить как готовый проект дома из кирпича, так и заказать на своё усмотрение индивидуальное проектирование. В любом случае, в выигрыше будет каждый, поскольку, когда за дело берутся профессионалы, то и риски возникновения ошибок при строительстве дома практически сведены к нулю.
Преимущества проектирования домов под ключ
Преимущества профессиональных услуг по проектированию домов и коттеджей заключаются в следующем:
Преимущества проектирования домов под ключ
Не стоит экономить на услугах профессиональных архитекторов, ведь от качества проекта во многом зависит надёжность и долговечность будущего здания.
Как выбрать проект дома: основные моменты
Если раньше у тех, кто решил построить дом, практически не было выбора, так как застройщики предлагали лишь скучные типовые проекты, то сегодня каждый может воплотить в жизнь свои представления о красивом и комфортабельном жилье, благодаря новым технологиям строительства и разнообразию архитектурных решений.
Выбирая проект дома, необходимо учесть все нюансы, ведь любая мелочь, которая, на первый взгляд, не играет важной роли, в будущем может сильно повлиять на степень комфорта и практичность готового здания. Читайте также на сайте https://samastroyka.ru/ про этапы ландшафтного проектирования.
Как выбрать проект дома: основные моменты
Существует несколько основных факторов, которые необходимо принять во внимание при выборе проекта:
Очень важно понимать, что проект, идеально подходящий для участка ваших соседей, может быть абсолютно непригодным для вашей приусадебной территории, поэтому все вопросы, касающиеся технической стороны дела, важно согласовать с архитектором, который поможет определиться с выбором, предоставив профессиональные консультации.
Преимущества проектирования домов под ключ
В компании вы можете заказать как проектирование дома, так и разработку ландшафтного дизайна участка. Возможно, что вы давно мечтаете о комфортабельном жилье с уютной беседкой во дворе или с игровой площадкой для детей, где они будут весело проводить время.




