Дизайнер Александра Якушенко рассказывает, как перепланировка и выбранные цвета помогли создать уютный интерьер
Обои, Milassa. Светильники, Odeon Light и Arte Lamp. Картина «Сестры», Екатерина Щепина. Ковер, Kover.ru. Растения, Saint Palms. Кварцвинил, Vinilam. Двери, «Фрамир».
Фото
Иван Сорокин. Стиль: Ирина Генделева
Эта квартира досталась заказчикам от родственников, с ней связано много теплых воспоминаний. Они хотели сохранить семейный уют и ощущение дома — мы постарались сохранить эту атмосферу, добавив современные элементы. Несмотря на то, что сами клиенты жить здесь не планируют, им важно было создать особое настроение. Для этого идеально подошел современный стиль с нотками mid-century.
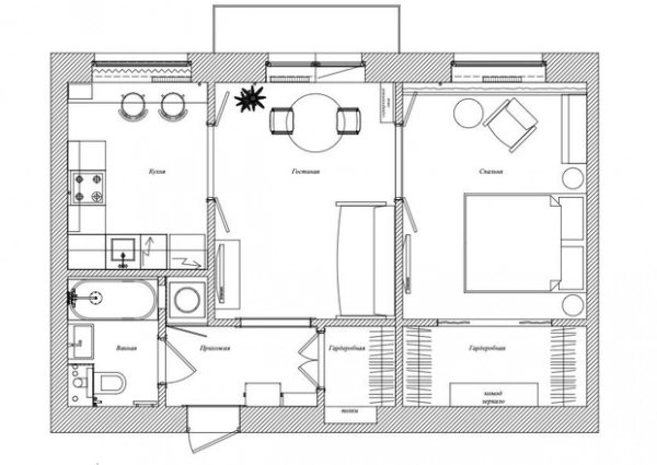
Это была типовая советская двушка в неважном состоянии: с длинным узким Г-образным коридором, раздельными санузлами, крохотными кладовками и маленькой кухней. Что мы изменили? Убрали лишнюю часть коридора: благодаря этому нам удалось сделать шкаф для стиральной машины и бойлера, полноценную гардеробную в прихожей с зеркальными дверьми, а также достаточно просторную гардеробную при спальне.
Порталы, «Европласт».
Фото
Иван Сорокин. Стиль: Ирина Генделева
Площадь — всего 49 кв. м, поэтому мы особенно старались создать ощущение простора, воздушности. Для этого мы перенесли входы в кухню и спальню из коридора в гостиную, расположили их друг напротив друга, и у нас получилась небольшая анфилада — довольно нетипичное решение для таких квартир. К тому же, мы немного «приподняли» потолки 2,45 м, сделав высокие двери. Все это смотрится очень благородно!
Интерьер украшают насыщенные цвета: зеленый, синий, мятный и горчичный в сочетании с разным черно-белым орнаментом. Цвет — один из главных наших инструментов: кухня, например, выполнена их недорогих материалов, но темно-синие фасады и металлические ручки придают ей шарма и очарования.
Карнизы и плинтусы, Hiwood.
Фото
Иван Сорокин. Стиль: Ирина Генделева
Плитка на фартуке, Vives. Краска, Swiss Lake. Гарнитур изготовлен по эскизам дизайнера. Смеситель, Iddis cuba. Духовой шкаф, Korting. Плита, Korting.
Фото
Иван Сорокин. Стиль: Ирина Генделева
Фото
Иван Сорокин. Стиль: Ирина Генделева
Мы решили оставить хорошо сохранившуюся мебель: отреставрировать комоды, книжные шкафы, стулья, сервировочный столик, кресло, диван, торшер и отличный чешский гарнитур. Чтобы осовременить квартиру, остальное мы выбрали уже новое, сделали свежую отделку, поменяли технику (ее выбирали очень тщательно, чтобы она не перебивала винтажное настроение). Современные элементы не столько контрастируют с отреставрированной мебелью, сколько органично дополняют ее.
В общую палитру отлично вписались картины, статуэтки, тарелки. Это все работы художников, а не постеры, что тоже важно. Я убеждена, и доказываю это на практике, что даже в инвестиционной квартире есть место для ручной работы, пусть это и не именитый художник.
Фото
Иван Сорокин. Стиль: Ирина Генделева
При проектировании мы не делали визуализации, а пользовались выкладками материалов — мудбордами, концепция рождалась из вдохновения материалами, их сочетаниями, тактильными свойствами. Если бы мы шли от какой-то исходной картинки для каждого помещения, такого результата, скорее всего, не получилось.
Фото
Иван Сорокин. Стиль: Ирина Генделева
В спальне получилось отличное пространство — тут есть и место для чтения, и большая гардеробная с акцентной шторой. Гардеробная спроектирована так, чтобы одежду было не видно за простенками, поэтому мы не стали отделять ее дверьми, чтобы не дробить и без того небольшое пространство.
Люстра, Kink light. Кровать, Askona. Подвесные светильники, Odeon Light. Обои, Milassa и Loymina.
Фото
Иван Сорокин. Стиль: Ирина Генделева
Фото
Иван Сорокин. Стиль: Ирина Генделева
Комод, ИКЕА.
Фото
Иван Сорокин. Стиль: Ирина Генделева
А еще здесь можно заметить очень милый прикроватный столик-сову из индонезийского магазина. Выглядит неожиданно, но смотрится совершенно органично.
Фото
Иван Сорокин. Стиль: Ирина Генделева
Ванную украшает красивая плитка: вертикальная синяя на стенах и графичная на полу. Отсюда черно-белый мотив распространился на всю квартиру.
Плитка на полу, Vives. Плитка на стенах, Equipe. Смеситель, Iddis. Ванна Modern, Marka one.
Фото
Иван Сорокин. Стиль: Ирина Генделева
Контакты: дизайнер Александра Якушенко, т. +7 (921) 756-17-22, t.me/domdesigna, www.domdesigna.com
План квартиры 49 кв. м до и после. Проект Александры Якушенко.













