Абсолютно все люди, имеющие дачный участок или частный дом, хотят чувствовать себя на их территории в полной безопасности. Обеспечить желаемый комфорт и безопасность может забор из профнастила. Причем сегодня из профнастила своими руками можно изготавливать несколько типов ворот, таких как раздвижные и распашные.
Декорирование и конструкция калитки и ворот из профнастила
Профнастил изготавливается из высокопрочной стали на современном прокатном оборудовании. Немного изогнутый профилированный лист имеет вид волны трапециевидной формы и в некоторых случаях может покрываться полимерным или же эмалевым покрытием. Профилированный лист обладает такими техническими характеристиками:
- Хорошо переносит различные механические воздействия.
- Имеет небольшую массу.
- Практически не поддается коррозии.
- Надежен во время использования.
- Имеет оптимальную стоимость.
На сегодняшний момент профнастил относится к одним из самых распространенных строительных материалов, который используется не только для устройства фасада дома, но и как кровельный материал, притом стоимость материала достаточно низкая.
Схема с размерами конструкции ворот и калитки из пофнастила
Такая распространенность профнастила объясняется его универсальностью, потому что он отлично подходит как для частного строительства, так и для быстрого возведения зданий.
Положительные и отрицательные стороны
Забор, ворота и калитка из профнастила обладают как положительными, так и отрицательными качествами. Для начала рассмотрим положительные стороны возведения забора из профнастила своими руками:
Оригинальный дизайн ворот из профнастила с коваными элементами
- Достаточно простое изготовление, а также установка.
- Приемлемая цена.
- Низкая сложность земляных работ, которые заключаются в проделывании отверстий для опорных столбов.
- Довольно привлекательный внешний вид.
- Устойчивость к коррозии, но только тогда, когда гарантируется полное отсутствие повреждений верхнего защитного слоя конструкции.
- Достаточно продолжительный срок службы.
Теперь рассмотрим недостатки, которыми обладает возведенный своими руками забор из профнастила:
- Полностью отсутствует звукоизоляция.
- В случае возникновения каких-либо повреждений, даже на первый взгляд незначительных, может возникнуть коррозия.
- Из-за небольшой толщины материла, в заборе достаточно просто сделать отверстие.
- Есть вероятность деформирования вследствие какого-либо механического воздействия.
Раздвижной тип ворот
Раздвижные или как их еще называют, откатные ворота, считаются самым удобным типом ворот.
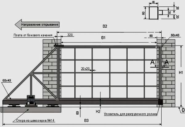
Элементы конструкции раздвижных ворот из профнастила
Он достаточно прост в изготовлении и монтаже, а, значит, их запросто можно устанавливать своими руками. К тому же такой тип ворот позволит вам сэкономить место.
Главным условием, которое обязательно должно соблюдаться при изготовлении забора из профилированного листа, является точность расчетов. Например, металлическая рама, на которой будет закрепляться лист профнастила, должна изготавливаться строго с соблюдением все размеров в чертеже, а также без каких-либо горизонтальных отклонений.
Изготовление раздвижных ворот производится из таких материалов:
- Профилированные листы;
- Металлическая рама;
- Роликовый механизм.
Но прежде чем переходить к изготовлению ворот, вы обязательно должны сделать чертеж будущей конструкции. Чертеж поможет вам не только в момент изготовления, но и при возведении забора своими руками. Только после того, как готов чертеж, можно начинать изготавливать и устанавливать забор из профнастила.
Подробный чертеж с размерами откатных ворот из профнастила
В первую очередь нужно в вертикальном расположении забетонировать опорные столбы, а уже после этого можно заливать фундамент. Глубина фундамента и погружения опор в землю должны быть на расстояние не меньше метра, а длина фундамента — составлять половину от ширины ворот.
Изготовление рамы заключается в сваривании металлических уголков в шахматном порядке с промежутком в тридцать сантиметров. Направляющая закрепляется на нижнем крае металлической рамы, после этого к готовой раме крепятся профилированные листы. На последнем этапе изготовления на фундаменте закрепляется роликовая платформа, верхняя часть которой закрепляется на опорных столбах. После этого обязательно нужно проверить вертикальность расположения ворот из профнастила при помощи уровня. Также раздвижные ворота часто дополняют устройствами радиоуправления.
Распашной тип ворот
Чертеж распашных ворот из профнастила
Распашные ворота с калиткой из профнастила состоят из двух частей и открываются на обе стороны. В качестве опорных стоек для представленного типа ворот применяются металлические трубы, которые закрепляются в ямах глубиной не меньше метра. Рама для ворот такого типа изготавливается из металлических труб с маленьким диаметром, а для большей жесткости по углам всей конструкции закрепляются уголки крепежа. После всего этого к полностью сделанной раме при помощи саморезов крепятся профилированные листы.
Конструкция обязательно нуждаются в петлях для распашных ворот, которые закрепляются на опорных столбах, а также на обратной стороне ворот. Как вы видите, распашные ворота достаточно просты как в изготовлении, так и в установке, а, значит, их просто установить своими руками. Главным критерием, из-за которого многие люди решают приобрести такой тип ворот, является доступная цена.
Ворота с ковкой
На сегодняшний момент ворота из профнастила с элементами ковки пользуются огромной популярностью. Это объясняется схожестью мнений большинства людей, которые думают, что весь забор целиком, а особенно вход на территорию, должен быть не только надежным, но и привлекательным элементами своего декора, потому что на него постоянно смотрят как хозяева дома, так и прохожие.
К тому же ковка наделяет забор не только большей привлекательностью, но и большей жесткостью и надежностью. А закрепляются кованые элементы на листах профнастила при помощи винтиков или сварки.
Многие думают, что цена на кованые элементы настолько велика, что они не смогут себе позволить их приобрести, но это не так. Сегодня стоимость настолько мала, что их может себе позволить почти каждый желающий. Почему же так упала цена на кованые элементы декора? Все потом, что раньше их могли сделать только специально обученные люди, а теперь они производятся на заводах в огромных количествах.
Оригинальный дизайн ворот и калитки с коваными элементами
Сейчас стоимость ворот из профнастила с ковкой может быть даже меньше, чем ворот, изготовленными из каких-либо других материалов. Для выполнения сварочных работ вам потребуются только электроды и сварочный аппарат.
Установка ворот с ковкой
Прежде всего, нужно проделать углубления для опорных столбов, что делается с помощью ямобура. Если у вас нет ямобура, то его всегда можно взять в аренду. Глубина проделанных отверстий должна быть не меньше и не больше трети высоты ваших ворот. После этого на дно углублений нужно засыпать щебень, который будет играть роль подушки для опорных столбов.
Далее, вся эта конструкция бетонируется раствором цемента, щебня и песка, в соотношении 1:4:2. Потом столбы нужно оставить на несколько дней для полного затвердения раствора. Теперь остается только собрать всю конструкция в одно целое. Для закрепления кованых элементов на профнастиле применяется сварка.
Как видите, сделать ворота из профилированного листа с ковкой калитки довольно просто при условии, что вы все правильно рассчитали и грамотно сделали чертеж.
Установка калитки
В чем заключается установка калитки из профилированного листа? Прежде чем переходить к установке калитки нужно определиться с ее формой и размерами, причем это должно было быть продумано еще тогда, когда вы создавали чертеж ворот. Одной из самых распространенных форм калитки является прямоугольная.
Размеры калитки не должны превышать размеры половины от ширины створки, в которой вы хотите ее устанавливать.
Что касается высоты калитки, то она не должна, быть меньше, чем стандартный рост человека. Ширина идеальной калитки составляет один метр, а высота два метра. Калитка изготавливается по такому же принципу, что и створки распашных ворот.
Монтаж калитки из профнастила
Сначала из металлических уголков сваривается каркас, а уже потом закрепляются две поперечно расположенные трубы внутри каркаса. После того как каркас был собран, к нему можно крепить профилированные листы при помощи саморезов.
Далее, нужно на предварительно установленные опорные столбы приварить калиточные петли и металлические ограничители. К одному из опорных столбов крепятся металлические ограничители, а к другому петли. После этого к калитке нужно прикрепить ручки и замок, а также навесить ее на петли. О том, как установить замок на калитку, мы расскажем немного позже. Как видите, установка калитки из профилированного листа достаточно проста, а, значит, вы легко сможет установить ее своими руками, без помощи специалистов.
Замок
На сегодняшний момент существует несколько типов замков для ворот из профнастила, но мы рассмотрим только основные из них:
- врезной;
- магнитный;
- накладной.
Из всех вышеперечисленных типов магнитный замок считается самым надежным. Главные качества, которыми должен обладать замок на калитку из профнастила — это надежность и долговечность. Замок с внешней стороны обязательно должен быть защищен от проникновения воды.
Как проводится установка замка на калитку из профнастила? Накладной замок закрепляется на воротах посредством крепежей, для которых предварительно должно быть высверлено отверстие. Для того чтобы врезать замок в калитку, нужно будет воспользоваться болгаркой для высверливания паза, в который и будет вставлен замок.
Замок с ручкой для калитки и профнастила
Также стоит обратить внимание на то, что планировать месторасположения замка необходимо еще при сваривании каркаса, потому что под него должны быть высверлены специальные отверстия. То есть чертеж должен составляться уже с учетом расположения замка. Отверстия в опорных столбах проделываются при помощи болгарки, а потом обрабатываются при помощи напильника и окрашиваются. А отверстия в профлисте можно проделать с помощью ножниц по металлу или же дрели.









